Attico in affitto - Baumgartenstrasse 18, 8902 Urdorf
Perché amerai questa proprietà
Ampia terrazza sud-ovest
Posizione tranquilla con vista
Accesso diretto al parcheggio
Organizza una visita
Prenota una visita con Mager oggi!
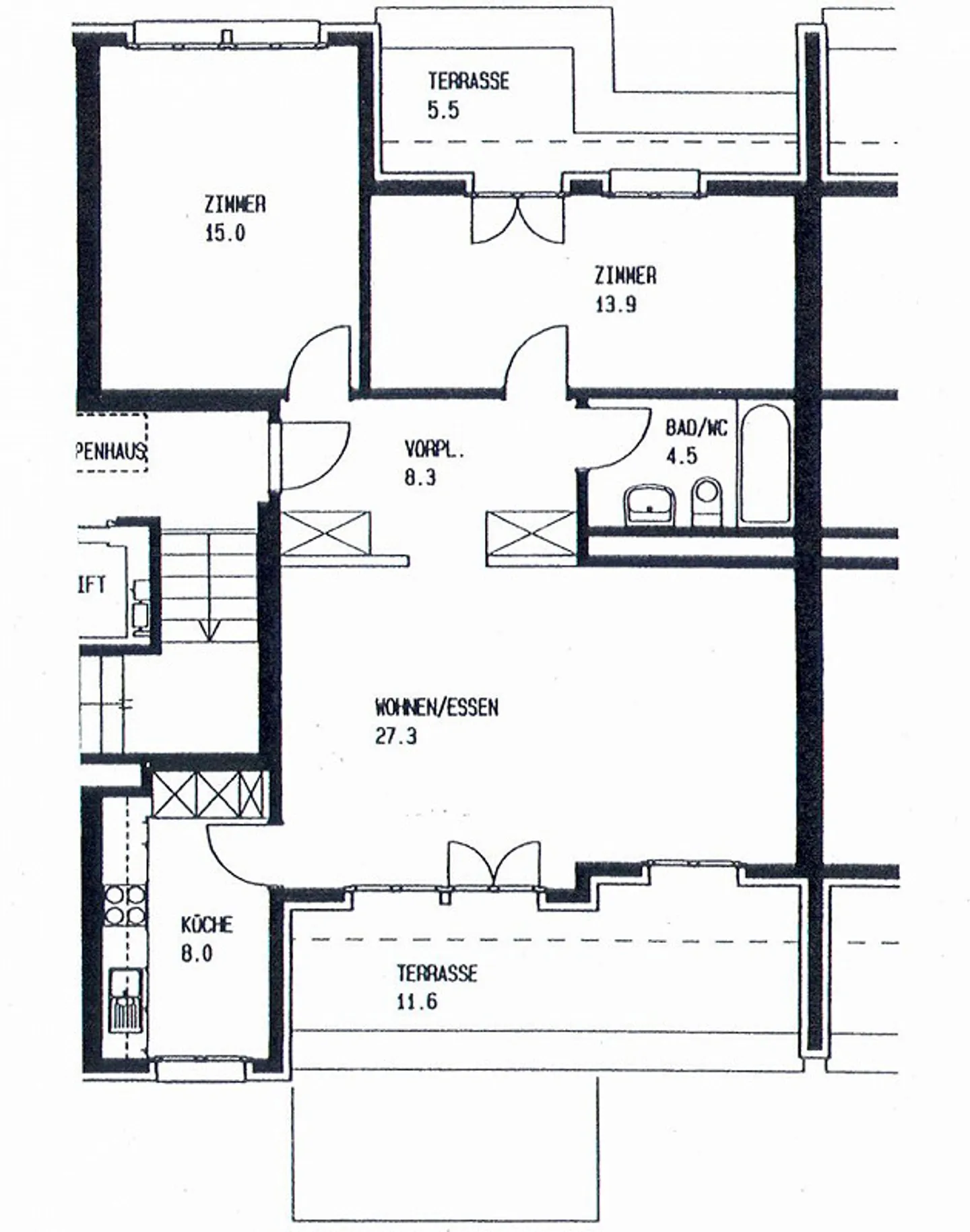
Cercasi nuovo inquilino
Cercasi nuovo inquilino - bell'appartamento luminoso di 3,5 locali al 3° piano con ascensore, in una zona tranquilla a Oberurdorf. L'appartamento dispone di una grande terrazza sul tetto esposta a sud-ovest (11,6 m²) con sole serale e di una seconda terrazza più piccola (5,5 m²) sul lato nord-est.
Data di ingresso: 01.03.2026
Prezzo dell'affitto: CHF 2'188.- (incluse spese accessorie)
Deposito cauzionale: CHF 6'564.- (3 mesi di affitto)
1 posto auto: CHF 130.- (attualmente sono disponibili su richie...
Dettagli immobile
- Disponibile dal
- Su accordo
- Stanze
- 3.5
- Anno di costruzione
- 1996
- Superficie abitabile
- 77 m²
- Piano
- 3°
- Piani dell'edificio
- 4



