Attico in affitto - Schlossergasse 17, 5620 Bremgarten AG
Perché amerai questa proprietà
Fascino di un edificio storico
Giardino condiviso con vista
Deposito in cantina incluso
Organizza una visita
Prenota una visita con d oggi!
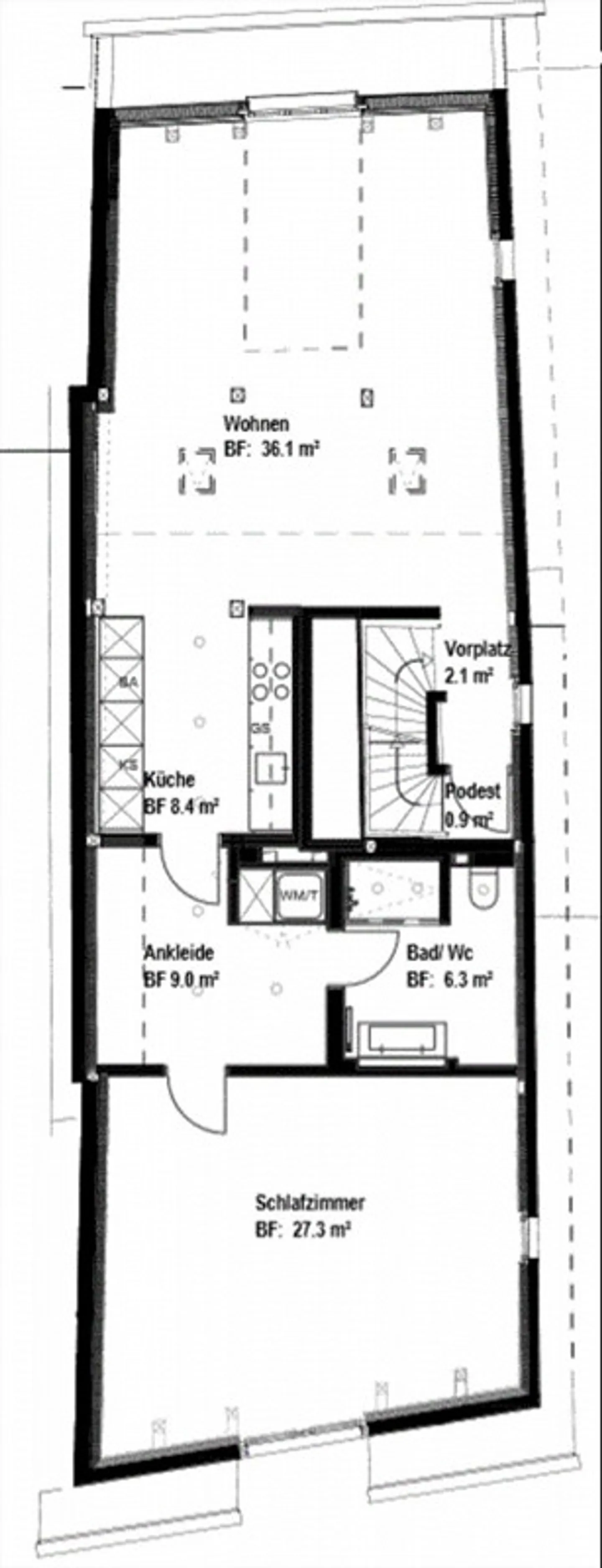
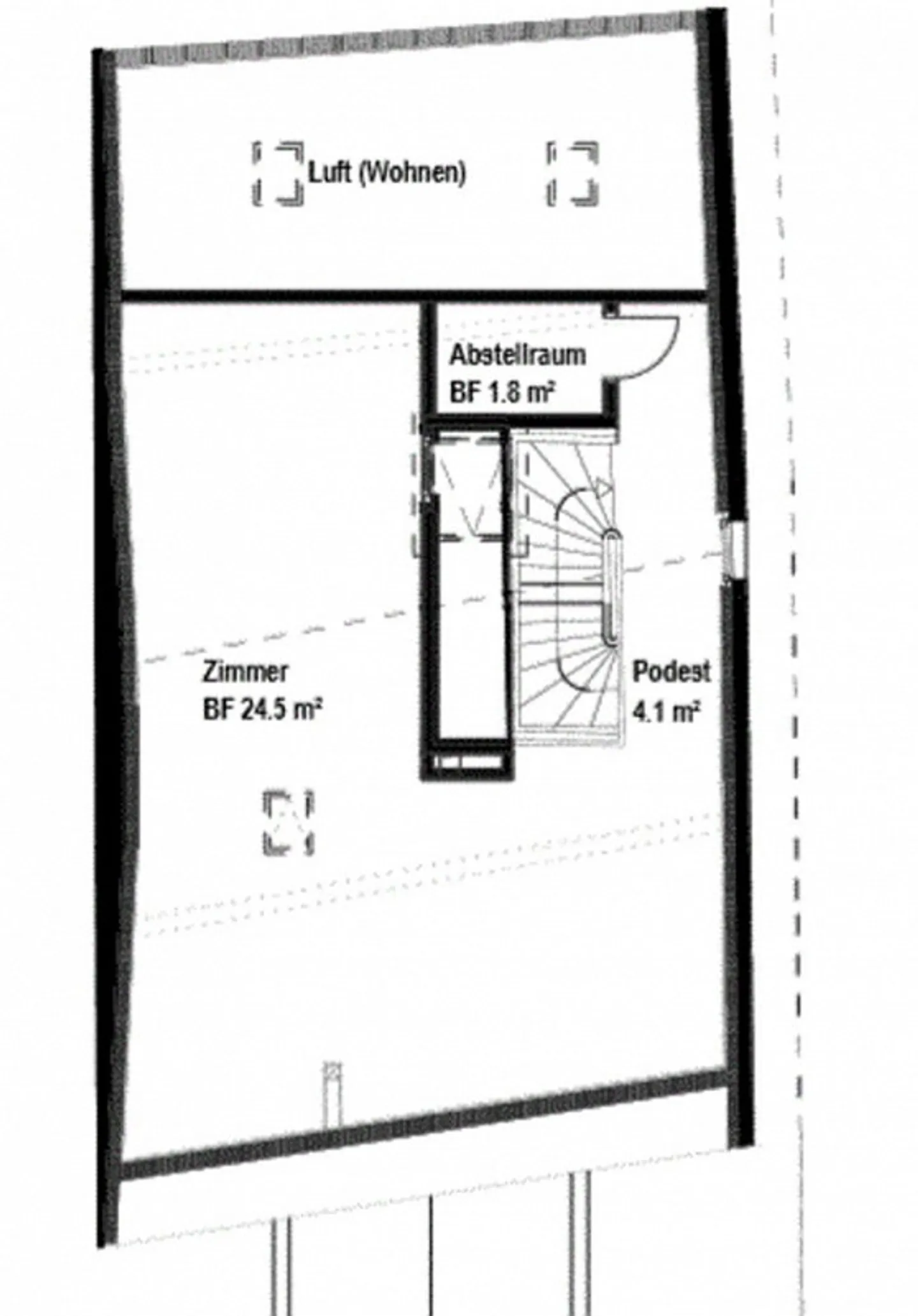
Incantevole maisonette di 3,5 stanze in un edificio storico
Appartamento maisonette nel centro storico di Bremgarten. Comparto cantina disponibile e area di seduta in giardino di ghiaia con vista sulla Reuss disponibile per uso condiviso.
Dettagli immobile
- Disponibile dal
- Su accordo
- Stanze
- 3.5
- Anno di costruzione
- 1860
- Anno di ristrutturazione
- 2019
- Superficie abitabile
- 137 m²
- Piano
- 3°
- Piani dell'edificio
- 2

