Appartamento in affitto - Chemin Des Peupliers 17, 1752 Villars-sur-Glâne
Perché amerai questa proprietà
Soggiorno luminoso con vista
Cucina completamente attrezzata
Quartiere adatto alle famiglie
Organizza una visita
Prenota una visita oggi!
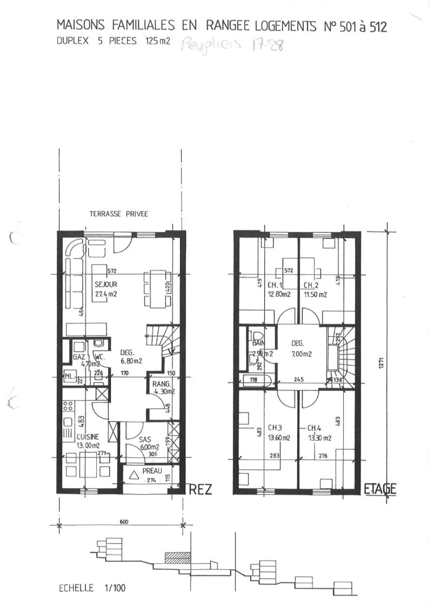
Spaziosa villa di 5 camere
Situata nel quartiere familiare delle Dailles, questa casa duplex di 5 camere offre tutto il comfort che ci si può aspettare: ingresso con armadi a muro, cucina completamente attrezzata con lavastoviglie, ampio soggiorno luminoso con vista libera, belle camere con parquet, colonna di lavaggio e asciugatura, due ripostigli, WC separato, riscaldamento a pavimento.
C'è anche la possibilità di affittare un garage individuale a Fr. 120.-/mese.
POSIZIONE:
Il quartiere delle Dailles dispone di tutti i ...
Ripartizione dei costi
- Affitto netto
- CHF 2'390
- Costi aggiuntivi
- CHF 400
- Totale delle locazioni
- CHF 2'390
Dettagli immobile
- Disponibile dal
- 16.04.2026
- Stanze
- 5
- Superficie abitabile
- 125 m²
- Superficie utilizzabile
- 125 m²



