Appartamento in affitto - Route D' Aïre 166, 1219 Aïre
Perché amerai questa proprietà
Accesso sicuro all'edificio
Ampio soggiorno
Vicino ai mezzi pubblici
Organizza una visita
Prenota una visita oggi!
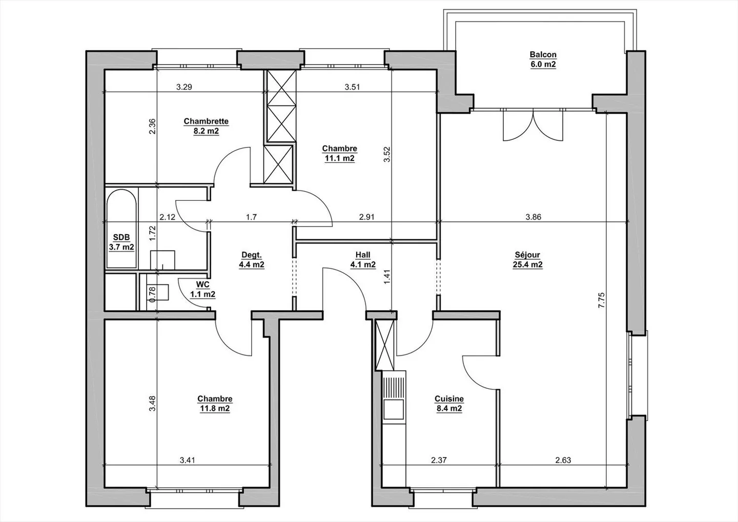
Incantevole appartamento di 5 stanze al 1° piano di un edificio sicuro vicino a tutto
Incantevole appartamento di 5 stanze al 1° piano di un edificio sicuro vicino a tutti i servizi.
Questo appartamento di circa 80m2 è composto come segue:
- Un ingresso
- Una cucina attrezzata con forno, piano cottura e cappa
- Un bel soggiorno con accesso al balcone
- Tre camere da letto, di cui due dotate di ripostiglio
- Un bagno
- Un WC separato
- Una cantina al piano interrato.
Si segnala che un posto auto completa questa proprietà, con un affitto di CHF 100.- in aggiunta all'affitto dell'appartame...
Ripartizione dei costi
- Affitto netto
- CHF 2’788
- Costi aggiuntivi
- CHF 220
- Totale delle locazioni
- CHF 2’788
Dettagli immobile
- Disponibile dal
- Su accordo
- Stanze
- 5
- Superficie abitabile
- 80 m²
- Superficie utilizzabile
- 80 m²
- Piano
- 1°


