Appartamento in affitto - Im Freien 16, 8203 Schaffhausen
Perché amerai questa proprietà
Parquet nella zona giorno
Cucina moderna con forno
Vicino alla città vecchia
Organizza una visita
Prenota una visita con Maja oggi!
Vivere nel verde
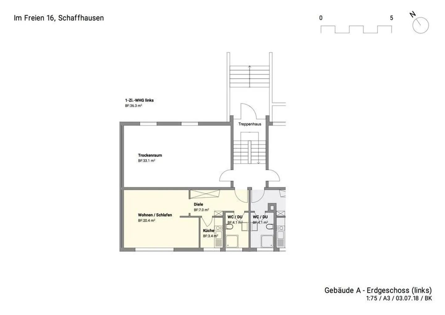
Nel complesso residenziale Im Freien 16, affittiamo questo appartamento con 1 camera con le seguenti caratteristiche:
- Zona giorno/notte con pavimento in parquet
- Cucina con piano cottura in vetroceramica e forno
- Bagno con WC, lavabo e doccia
- La città vecchia di Sciaffusa e un'area ricreativa sono nelle immediate vicinanze.
Questo immobile ha suscitato il tuo interesse? Saremmo felici di presentartelo più nel dettaglio tramite un appuntamento di visita senza impegno. Attendiamo il tuo conta...
Ripartizione dei costi
- Affitto netto
- CHF 850
- Costi aggiuntivi
- CHF 130
- Totale delle locazioni
- CHF 850
Dettagli immobile
- Disponibile dal
- Su accordo
- Stanze
- 1
- Anno di costruzione
- 1966
- Superficie abitabile
- 36 m²
- Piano
- -1°



