Appartamento in affitto - Avenue Pictet-De-Rochemont 16, 1207 Genève
Perché amerai questa proprietà
Cucina nuova e moderna
Soggiorno accogliente con camino
Vicino a tutti i servizi
Organizza una visita
Prenota una visita con Service oggi!
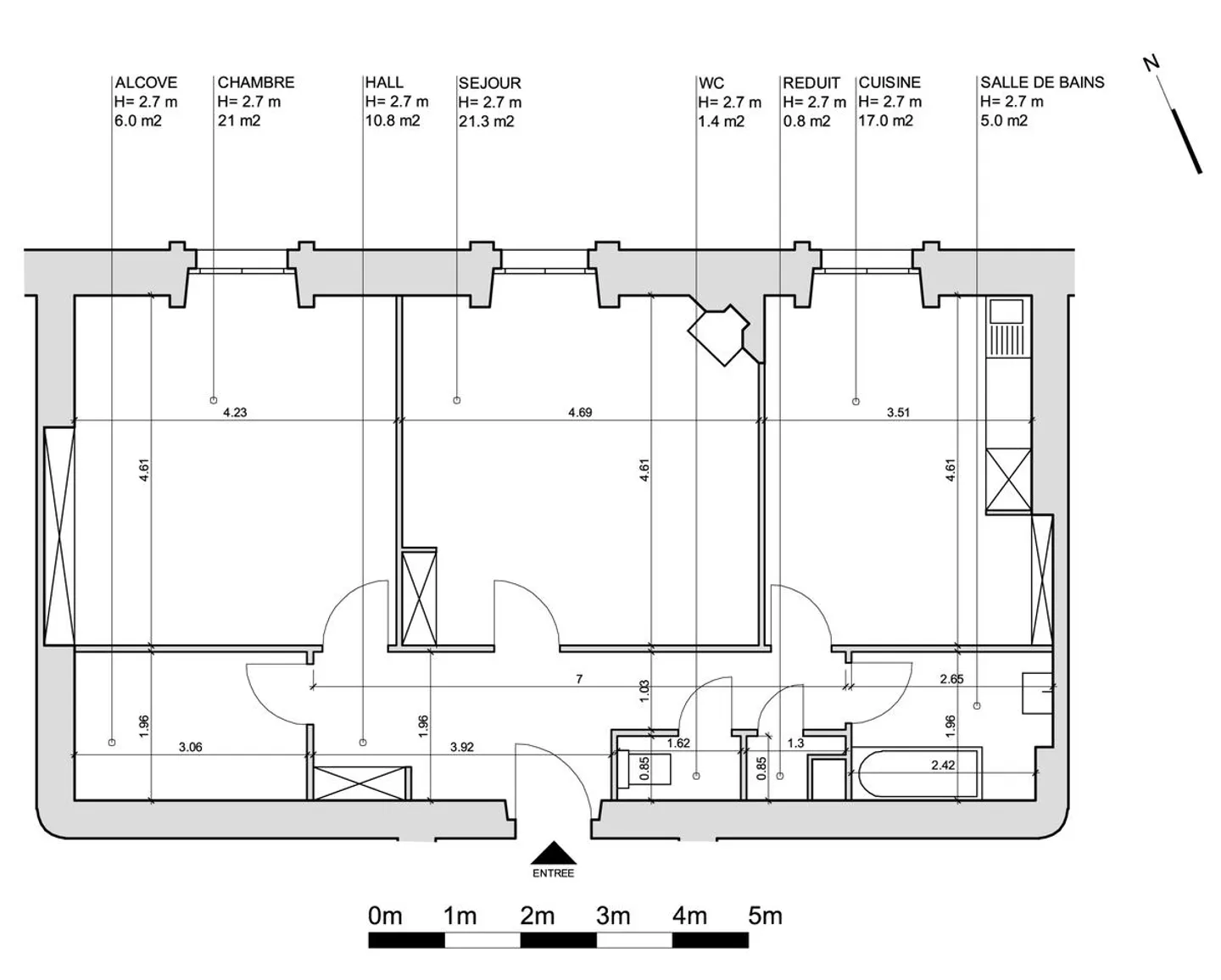
Appartamento 3 locali
Bell'appartamento di 3 locali di circa 83m2 situato a Eaux-Vives
Vicino a tutti i servizi. L'appartamento comprende una grande cucina nuova, un soggiorno (caminetto decorativo), una camera da letto, una piccola stanza cieca, un bagno nuovo, WC separati e un piccolo ripostiglio. Edificio senza ascensore.
Dettagli immobile
- Disponibile dal
- Su accordo
- Stanze
- 3
- Superficie abitabile
- 83 m²


