Appartamento in affitto - Spiseggstrasse 15, 9030 St. Josefen
Perché amerai questa proprietà
Due balconi soleggiati
Piani di lavoro in granito
Area giardino privata disponibile
Organizza una visita
Prenota una visita con Menzi oggi!
Prima locazione
Posizione tranquilla e soleggiata in un bel contesto,
Stazione ferroviaria di St.Gallen e centro commerciale "Säntispark" facilmente raggiungibili in autobus, tempo di percorrenza di circa 10 minuti,
Affitto disponibile immediatamente o su appuntamento,
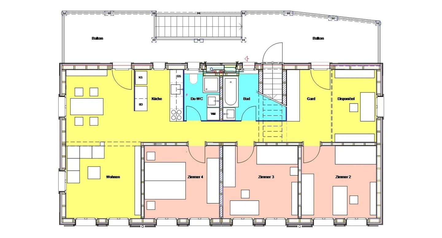
L'appartamento ha 3 camere equivalenti e un soggiorno orientato a sud-ovest, una quarta camera potrebbe essere separata per un appartamento condiviso.
2 bagni e 2 balconi.
Cucina con lavastoviglie e forno rialzato, piano di lavoro in granito.
Lavatrice...
Ripartizione dei costi
- Affitto netto
- CHF 2’100
- Costi aggiuntivi
- CHF 200
- Totale delle locazioni
- CHF 2’100
Dettagli immobile
- Disponibile dal
- Su accordo
- Stanze
- 4.5
- Anno di costruzione
- 2025
- Superficie abitabile
- 102 m²
- Piano
- 1°
- Piani dell'edificio
- 3



