Attico in affitto - Spiseggstrasse 15, 9030 St. Josefen
Perché amerai questa proprietà
Posizione soleggiata
Vicino ai sentieri naturali
Parcheggio opzionale con caricatore
Organizza una visita
Prenota una visita con Menzi oggi!
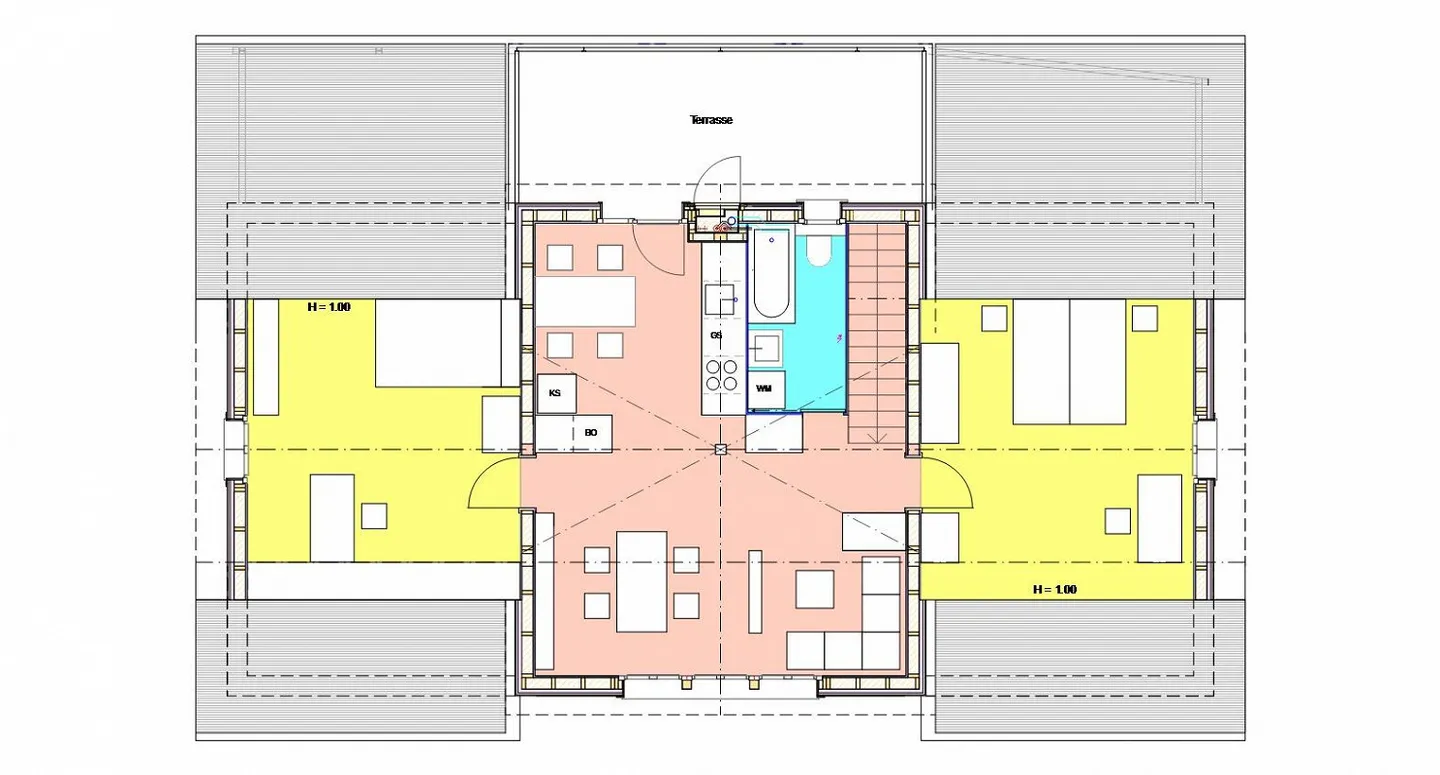
bellissimo appartamento mansardato
Prima locazione in una posizione soleggiata e tranquilla con buone connessioni di autobus alla stazione ferroviaria di San Gallo e al centro commerciale "Säntispark", tempo di percorrenza 10 minuti, distanza dalla fermata dell'autobus: 300 m.
Questo attraente appartamento di 3,5 locali si trova nella zona protetta di San Giuseppe, in prossimità del paesaggio naturale della Sitter con i suoi sentieri escursionistici rilassanti.
2 ampie camere e un accogliente soggiorno creano un'atmosfera di pace e...
Ripartizione dei costi
- Affitto netto
- CHF 1’950
- Costi aggiuntivi
- CHF 200
- Totale delle locazioni
- CHF 1’950
Dettagli immobile
- Disponibile dal
- Su accordo
- Stanze
- 3.5
- Anno di costruzione
- 2025
- Superficie abitabile
- 80 m²
- Piano
- 2°
- Piani dell'edificio
- 3



