Appartamento in affitto - Schützengraben 15, 4051 Basel
Perché amerai questa proprietà
Spazi abitativi luminosi
Due balconi soleggiati
Mobili antichi inclusi
Organizza una visita
Prenota una visita con Matthias oggi!
Appartamento 5 locali nella migliore posizione a basilea
Basilea
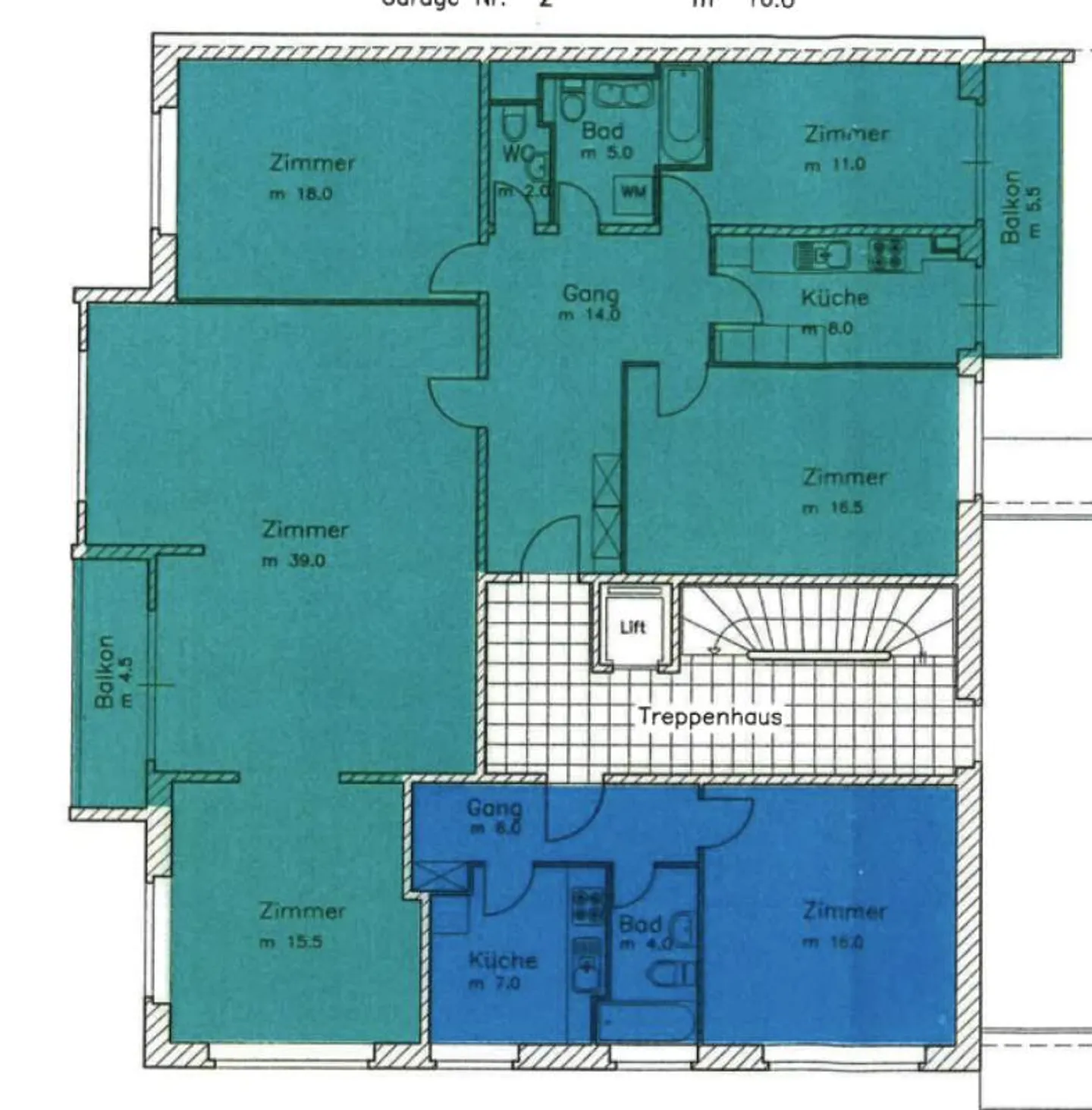
Questo luminoso e spazioso appartamento di 5 stanze, con una superficie abitabile di circa 130 m², si trova al 5° piano di un edificio plurifamiliare ben tenuto in Schützengraben 15 a Basilea.
La proprietà colpisce per una progettazione del piano ben pensata con stanze illuminate dalla luce e pavimenti in laminato facili da mantenere. L'appartamento è ideale per coppie o famiglie e offre, oltre a un ampio soggiorno e stanze, una cucina separata, un bagno con vasca e un WC per gli ospiti se...
Ripartizione dei costi
- Affitto netto
- CHF 3’770
- Costi aggiuntivi
- CHF 380
- Totale delle locazioni
- CHF 3’770
Dettagli immobile
- Disponibile dal
- Su accordo
- Stanze
- 5
- Superficie abitabile
- 130 m²
- Superficie utilizzabile
- 130 m²
- Piano
- 5°



