Appartamento in affitto - Rue Franche / Freiestrasse 15, 2502 Biel/Bienne
Perché amerai questa proprietà
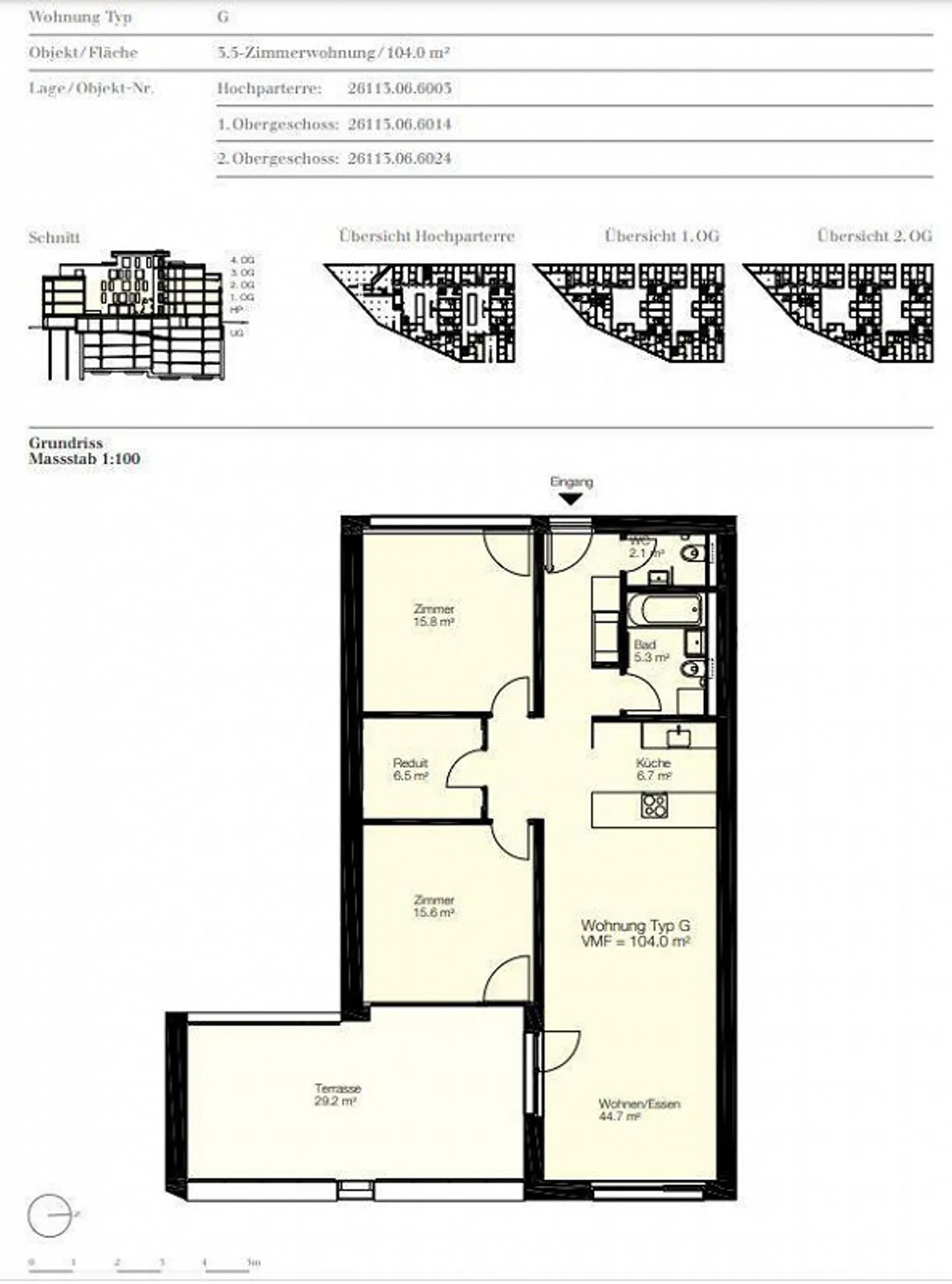
Cucina aperta con lavastoviglie
Ampia terrazza per rilassarsi
Nessun deposito richiesto
Organizza una visita
Prenota una visita con Michèle oggi!
AFFITTARE SENZA DEPOSITO - Qualità della vita per tutta la famiglia
Questa offerta è principalmente rivolta a piccole famiglie. Particolarmente vantaggiosi sono le scuole nelle immediate vicinanze e le numerose opzioni di shopping e intrattenimento raggiungibili a piedi.
Per la tua qualità della vita:
- cucina aperta con vetroceramica e lavastoviglie
- pavimento in parquet nel soggiorno e nelle camere da letto
- pavimento in piastrelle in cucina e nel bagno
- bagno con vasca/WC
- WC separato
- torre di lavaggio propria
- ampia terrazza
- cantina
- ascensore
Con questo immo...
Ripartizione dei costi
- Affitto netto
- CHF 1'940
- Costi aggiuntivi
- CHF 280
- Totale delle locazioni
- CHF 1'940
Dettagli immobile
- Disponibile dal
- Su accordo
- Stanze
- 3.5
- Anno di costruzione
- 2012
- Superficie abitabile
- 98 m²
- Piano
- 1°



