Appartamento in affitto - Ifangstrasse 15, 8104 Weiningen ZH
Perché amerai questa proprietà
Camere luminose con grandi finestre
Pratico armadio a muro
Ambiente verde e tranquillo
Organizza una visita
Prenota una visita oggi!
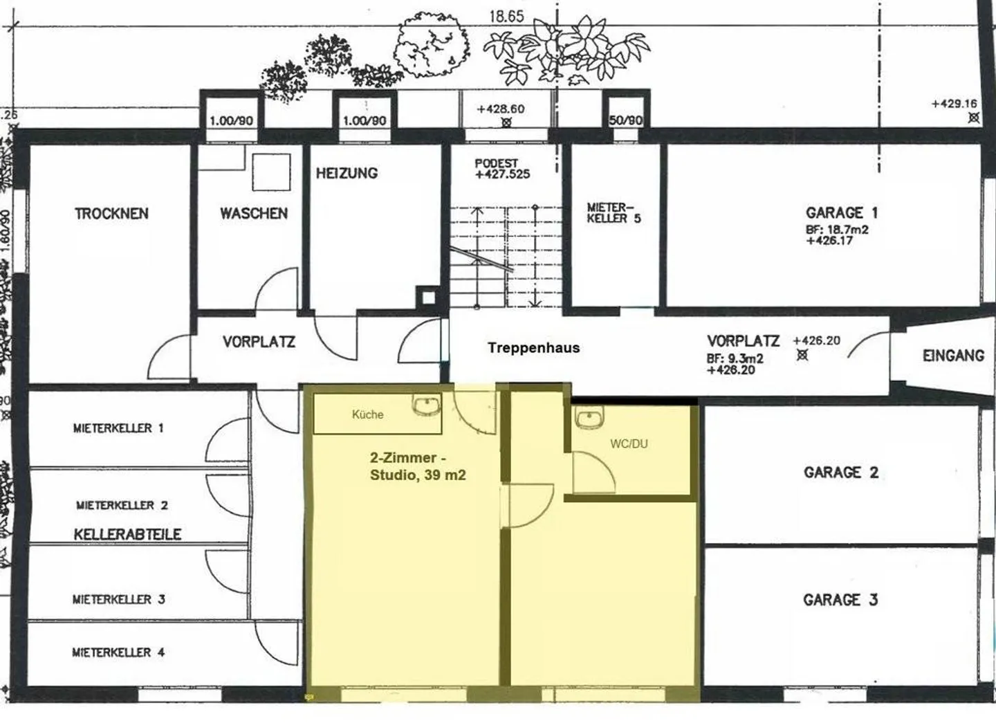
Affittiamo il seguente studio di 2 stanze a partire dal 01.05.2026
IL PIÙ IMPORTANTE
* Questo affascinante studio colpisce per le stanze illuminate grazie a grandi finestre, creando un'atmosfera abitativa piacevole.
* Bagno con doccia
* Nella camera da letto è disponibile un pratico armadio a muro.
LA POSIZIONE
* L'appartamento si trova in un ambiente tranquillo e verde, ideale per rilassarsi.
* Una fermata dell'autobus è raggiungibile in soli 300 metri, garantendo un buon accesso ai mezzi pubblici.
IL PARTICOLARE
* La posizione ideale unisce una vita tranquilla con un...
Ripartizione dei costi
- Affitto netto
- CHF 1'440
- Costi aggiuntivi
- CHF 230
- Totale delle locazioni
- CHF 1'440
Dettagli immobile
- Disponibile dal
- 01.05.2026
- Stanze
- 2
- Superficie abitabile
- 39 m²
- Piano
- -1°



