Attico in affitto - Hintergasse 15, 8353 Elgg
Perché amerai questa proprietà
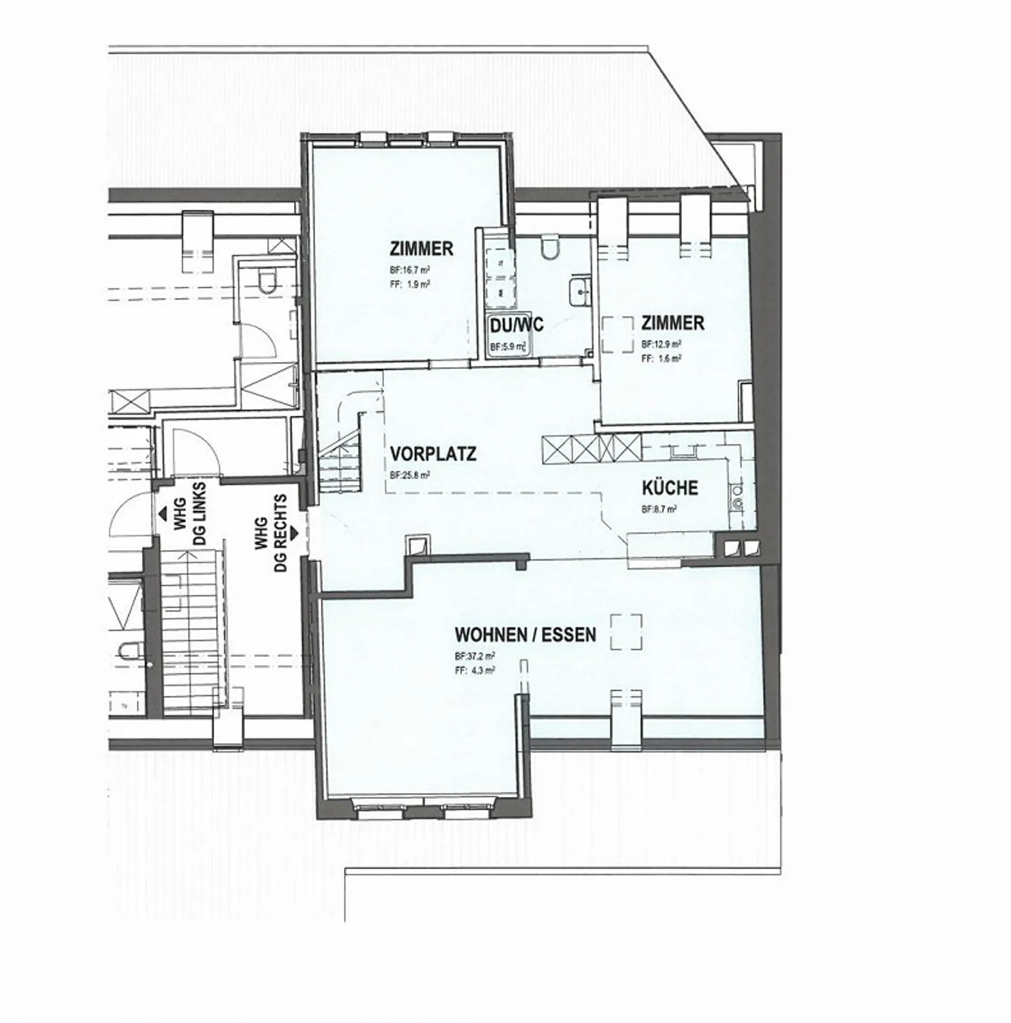
Cucina aperta moderna
Stufa svedese accogliente
Ampio soggiorno su due livelli
Organizza una visita
Prenota una visita con Brühwiler oggi!
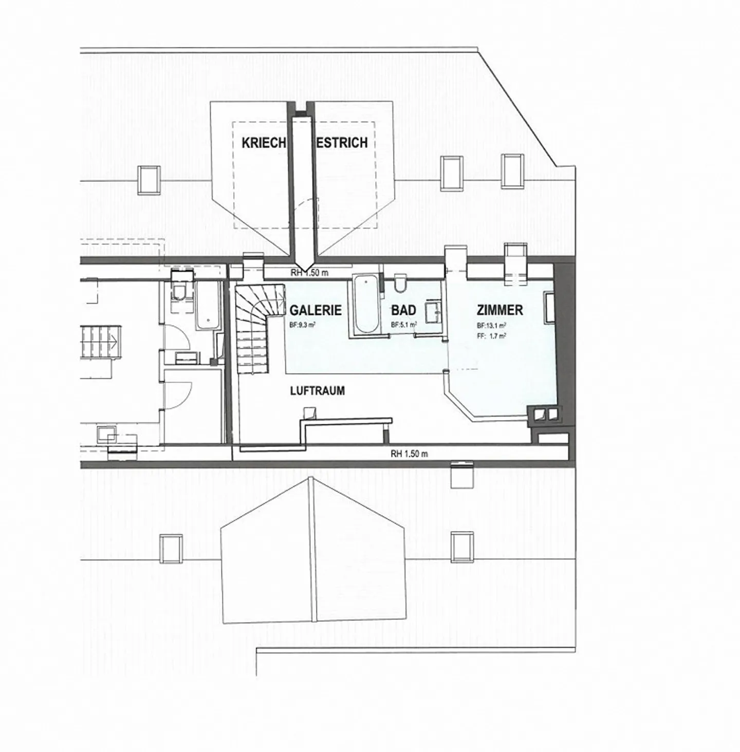
Ampio e accogliente appartamento duplex di 4,5 stanze (prima locazione)
8353 ELGG
Elgg si trova nella parte alta della valle d'Eulach, a circa dodici chilometri a est di Winterthur, proprio al confine con il cantone di Thurgovia. Elgg è una delle sei storiche cittadine di campagna di Zurigo, ma è in realtà un villaggio pieno di fascino, personalità e alta qualità della vita.
Un'eccellente infrastruttura con numerosi negozi, due banche, un ufficio postale e aziende efficienti e cooperative di vari settori caratterizza il villaggio. Grazie alla connessione ferroviaria s...
Ripartizione dei costi
- Affitto netto
- CHF 2’595
- Costi aggiuntivi
- CHF 270
- Totale delle locazioni
- CHF 2’595
Dettagli immobile
- Disponibile dal
- Su accordo
- Stanze
- 4.5
- Anno di costruzione
- 2026
- Superficie abitabile
- 135 m²
- Piano
- 2°
- Piani dell'edificio
- 5



