Appartamento in affitto - Vorstadt 14, 8200 Schaffhausen
Perché amerai questa proprietà
Travi storiche e parquet
Ampia cucina abitabile
Loggia con vista sul Munot
Organizza una visita
Prenota una visita con Marco oggi!
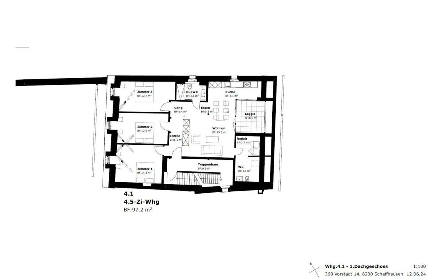
Vista affascinante Prima locazione di un nuovo appartamento di 4,5 stanze in città
Sostanza storica dell'edificio con travi a vista, pavimenti in parquet e grande cucina abitabile.
Bagno con doccia e WC separato con lavatrice e asciugatrice.
Loggia con vista sul Munot, ascensore fino al 3° piano.
Altri appartamenti sono disponibili per l'affitto nella stessa proprietà. Controlla su www.peyer-immob.ch o contattaci.
Errori e modifiche riservati.
Ripartizione dei costi
- Affitto netto
- CHF 2’490
- Costi aggiuntivi
- CHF 420
- Totale delle locazioni
- CHF 2’490
Dettagli immobile
- Disponibile dal
- Su accordo
- Stanze
- 4.5
- Superficie abitabile
- 97 m²
- Piano
- 4°



