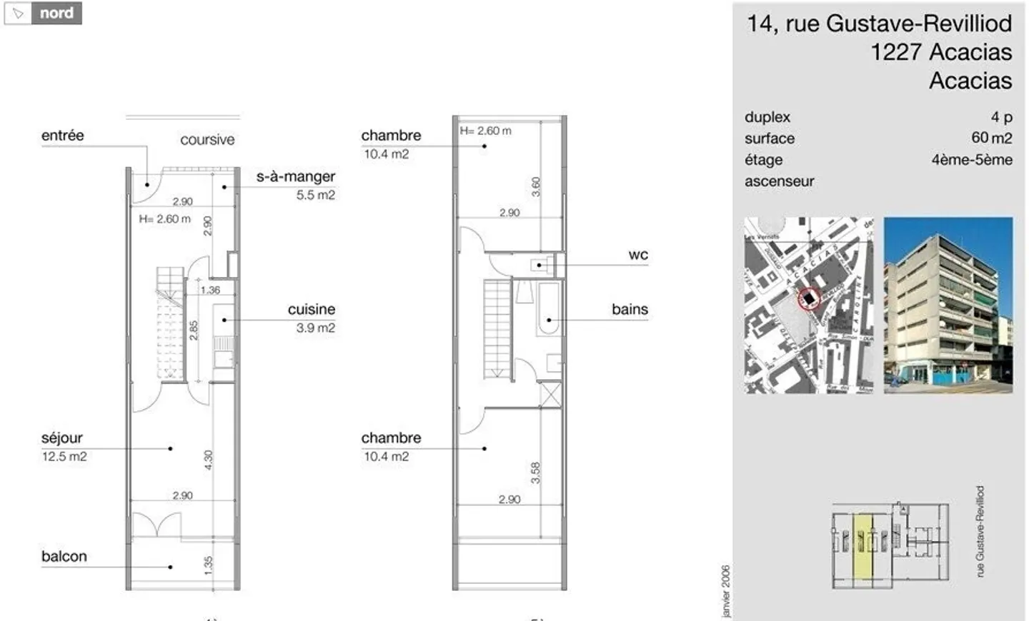
Appartamento in affitto - Rue Gustave- Revilliod 14, 1227 Les Acacias
Perché amerai questa proprietà
Ampio soggiorno
Vicino ai trasporti
Pavimenti in parquet ristrutturati
Organizza una visita
Prenota una visita oggi!
Da afferrare! Magnifico duplex vicino al centro di Ginevra!
Questo favoloso appartamento su due piani di circa 60m2 si trova nel quartiere Acacias. È in immediata prossimità di molti negozi, della stazione ferroviaria CFF di Lancy-Pont-Rouge e della scuola primaria degli Allobroges.
Si compone come segue:
- Un ingresso
- Un ampio soggiorno con accesso al balcone
- Una cucina chiusa e attrezzata
- Due luminose camere da letto con parquet
- Un bagno
- Un WC separato
I seguenti lavori saranno effettuati prima del vostro ingresso:
- Levigatura e verniciatura del parq...
Ripartizione dei costi
- Affitto netto
- CHF 2'170
- Costi aggiuntivi
- CHF 170
- Totale delle locazioni
- CHF 2'170
Dettagli immobile
- Disponibile dal
- 01.01.1970
- Stanze
- 4
- Anno di costruzione
- 1958
- Superficie abitabile
- 60 m²
- Piano
- 4°



