Appartamento in affitto - Route De La Poya 14, 1726 Farvagny-le-Grand
Perché amerai questa proprietà
Ampio balcone per relax
Cucina aperta con spazio
Atmosfera tranquilla del villaggio
Organizza una visita
Prenota una visita con Location oggi!
Neue 2.5-Zimmer-Wohnung im 2. Stock in Farvagny
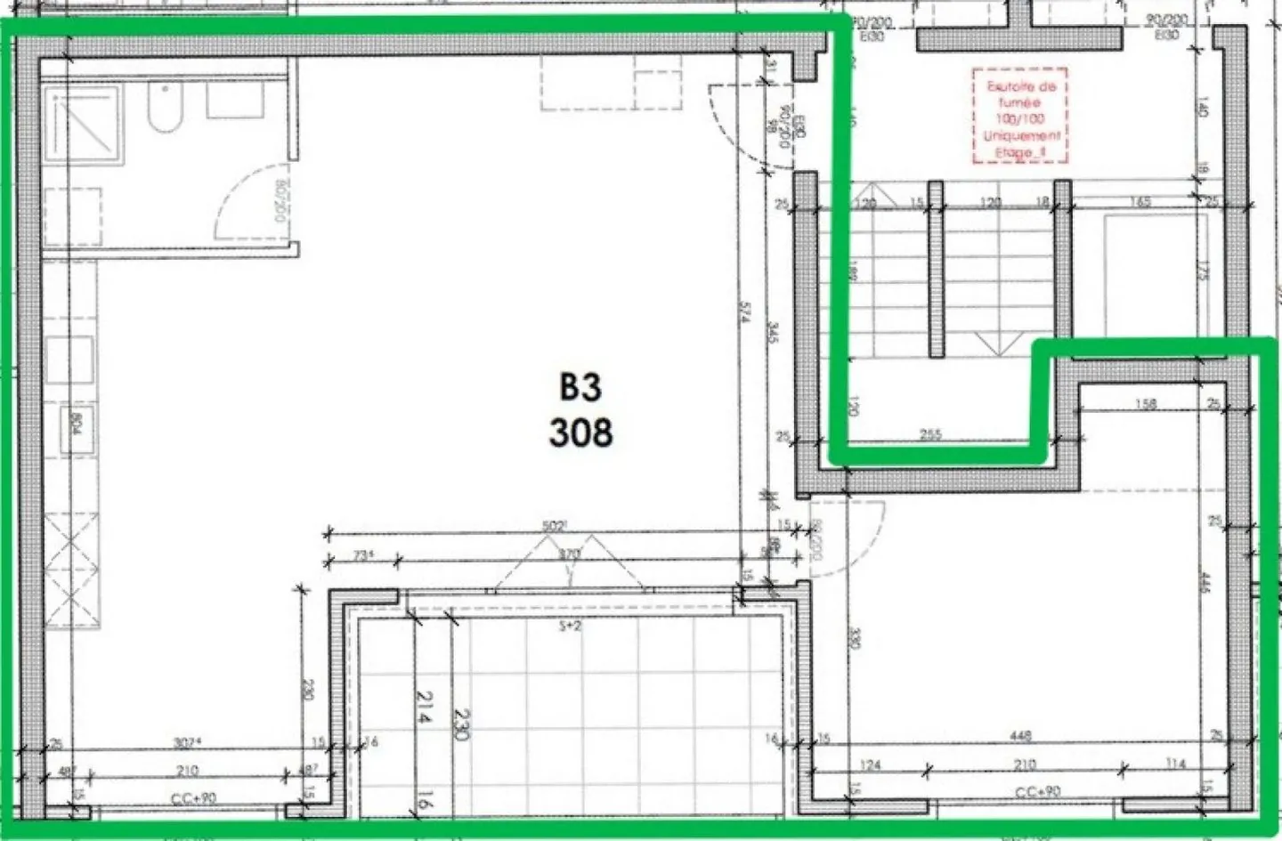
Neue 2.5-Zimmer-Wohnung in Farvagny, Lot 308 B3
Farvagny bezaubert mit seiner friedlichen und herzlichen Atmosphäre. Man spürt ein echtes Gefühl der Ruhe, umgeben von der Natur und der Stille der Landschaft. Die Spaziergänge, die grünen Landschaften und das Dorfleben schaffen ein Gefühl von Wohlbefinden, während man gleichzeitig sehr praktisch im Alltag bleibt.
Man findet hier eine Grundschule für die Kinder sowie den Cycle d'orientation du Gibloux für ältere Schüler. Das Dorf verfügt auch über ei...
Ripartizione dei costi
- Affitto netto
- CHF 1'600
- Costi aggiuntivi
- CHF 50
- Totale delle locazioni
- CHF 1'600
Dettagli immobile
- Disponibile dal
- 01.06.2026
- Stanze
- 2.5
- Anno di costruzione
- 2026
- Superficie abitabile
- 67 m²
- Superficie utilizzabile
- 67 m²
- Piano
- 2°



