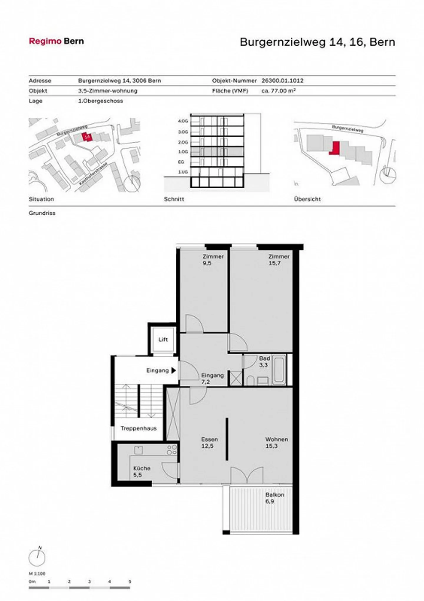
Appartamento in affitto - Burgernzielweg 14, 3006 Bern
Perché amerai questa proprietà
Nessuna cauzione richiesta
Ampio balcone
Cucina moderna attrezzata
Organizza una visita
Prenota una visita con Michèle oggi!
Affittare senza deposito - appartamento accogliente vicino al centro
Potresti pentirti se arrivi troppo tardi. Perché questo appartamento si trova in una posizione centrale ma comunque in una zona verde. È spazioso e colpisce per un buon rapporto qualità-prezzo.
Per la tua qualità abitativa:
- Cucina con piano cottura in vetroceramica e lavastoviglie
- Bagno con vasca/WC
- Pavimento in parquet nel soggiorno e nella camera da letto
- Pavimento in PVC in cucina e nei bagni
- Armadio nel corridoio
- Balcone
- Cantina
- Ascensore
Con questo immobile in affitto non devi versare...
Ripartizione dei costi
- Affitto netto
- CHF 1’740
- Costi aggiuntivi
- CHF 250
- Totale delle locazioni
- CHF 1’740
Dettagli immobile
- Disponibile dal
- Su accordo
- Stanze
- 3.5
- Anno di costruzione
- 1961
- Anno di ristrutturazione
- 1991
- Superficie abitabile
- 80 m²
- Piano
- 1°



