AFFITTARE SENZA CAUZIONE - Appartamento accogliente vicino al centro
Perché amerai questa proprietà
Nessuna cauzione richiesta
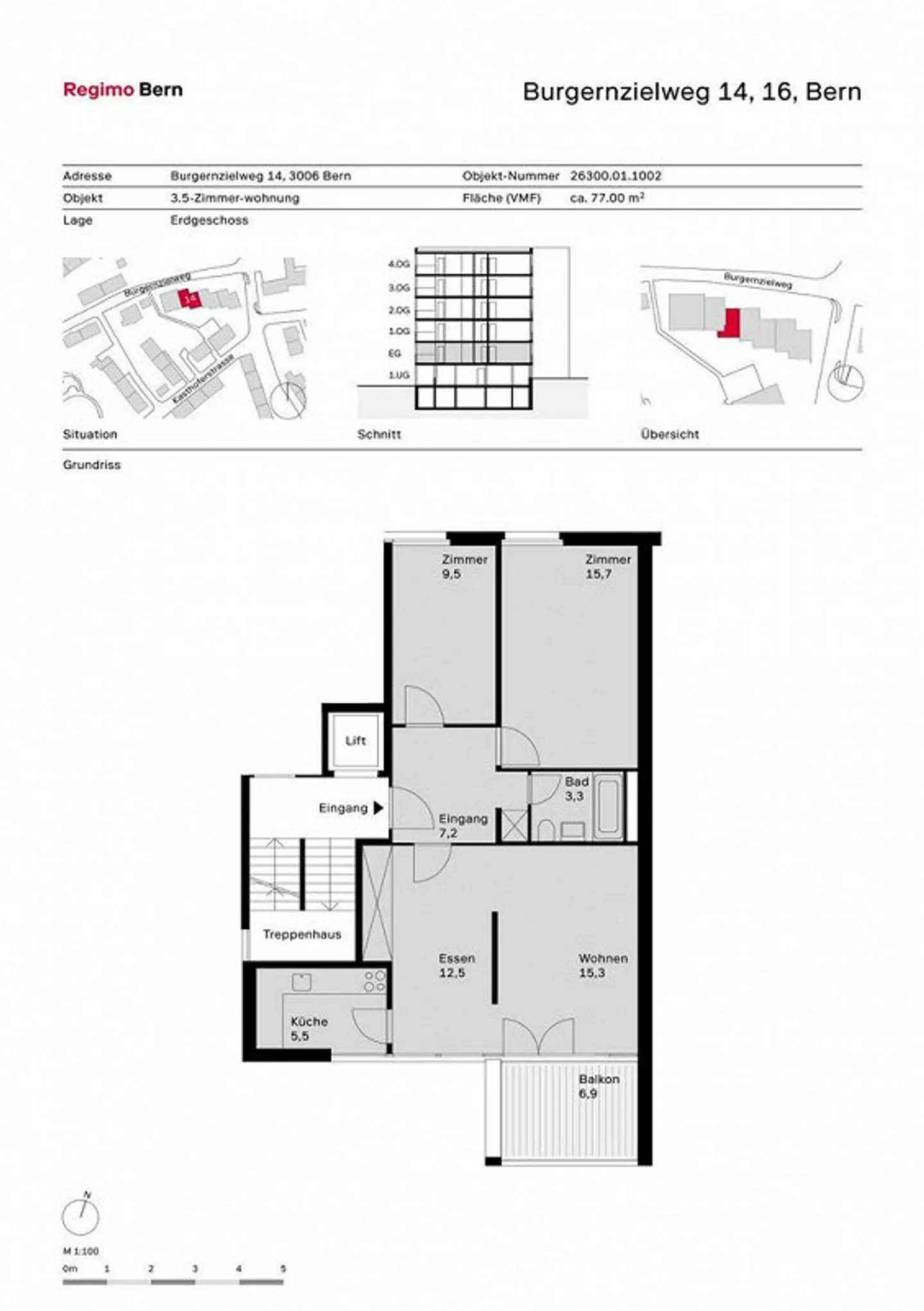
Spazioso con balcone
Cucina moderna attrezzata
Organizza una visita
Prenota una visita con Michèle oggi!
Potresti pentirti se arrivi troppo tardi. Perché questo appartamento si trova in una posizione centrale ma comunque in un'area verde. È spazioso e colpisce per un equo rapporto qualità-prezzo.
Per la tua qualità abitativa:
- Cucina con piano cottura in vetroceramica e lavastoviglie
- Bagno con vasca/WC
- Pavimento in parquet nel soggiorno e nella camera da letto
- Pavimento in PVC in cucina e nei bagni
- Armadio nel corridoio
- Balcone
- Cantina
- Ascensore
Con questo immobile in affitto non devi versare ...
Ripartizione dei costi
- Affitto netto
- CHF 1'690
- Costi aggiuntivi
- CHF 250
- Totale delle locazioni
- CHF 1'690
Dettagli immobile
- Disponibile dal
- Su accordo
- Stanze
- 3.5
- Anno di costruzione
- 1961
- Anno di ristrutturazione
- 1991
- Superficie abitabile
- 77 m²
- Piano
- Terra



