Appartamento in affitto - Brückenweg 14, 3930 Visp
Perché amerai questa proprietà
Design spazioso e luminoso
Cucina aperta con lavastoviglie
Ampio balcone per rilassarsi
Organizza una visita
Prenota una visita oggi!
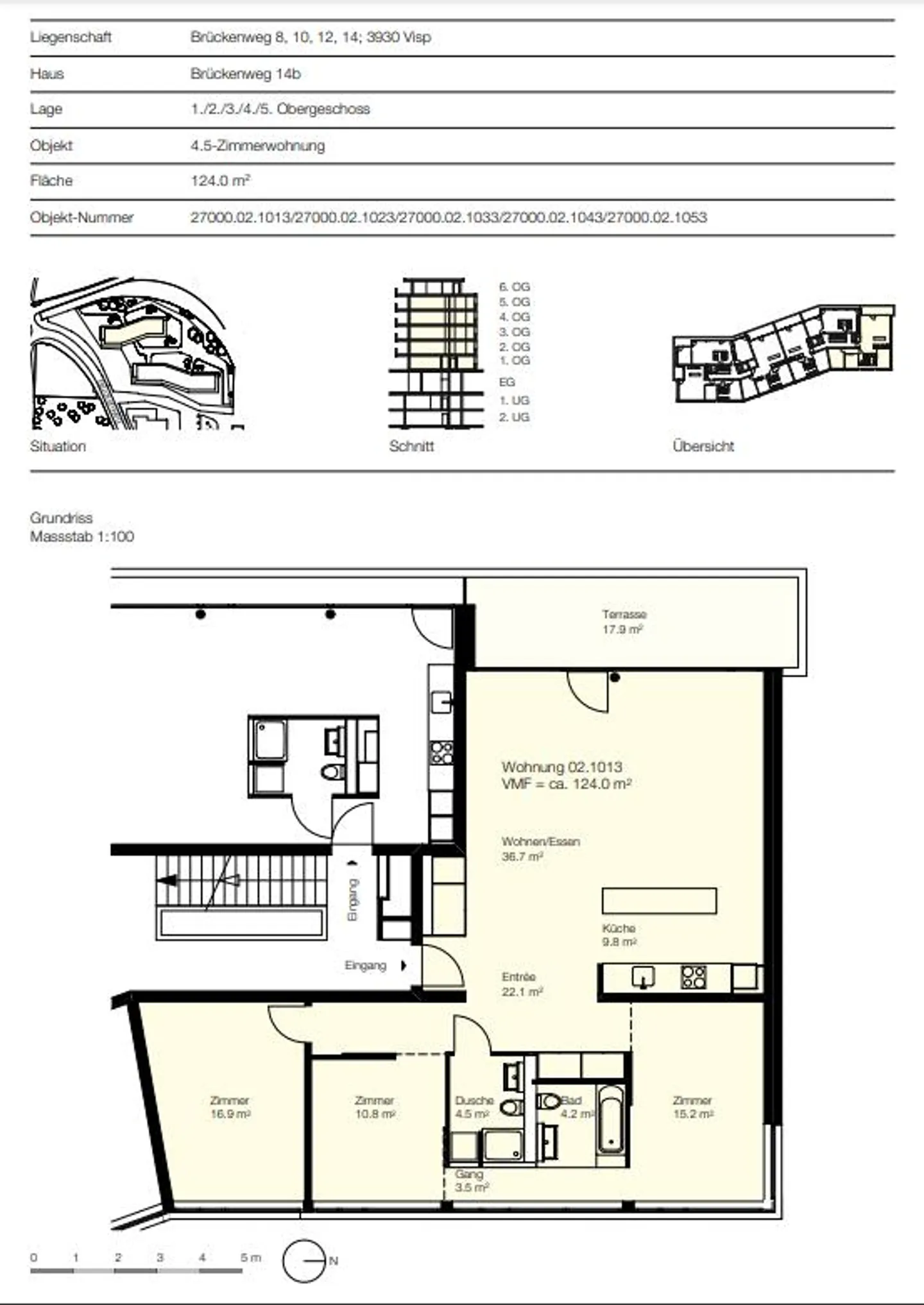
Appartamento moderno in città per intenditori
Goditi le generose dimensioni di questo appartamento moderno e luminoso con un ampio balcone dopo una giornata di lavoro intensa. Come persona urbana, apprezzi la vita cittadina che pulsa nei dintorni immediati e più ampi.
Per la tua qualità abitativa:
* cucina aperta con lavastoviglie e vetroceramica
* pavimenti in parquet e piastrelle
* torre di lavaggio propria
* bagno con vasca/WC
* bagno con doccia/WC
* armadio all'ingresso
* balcone
* ascensore
* cantina
In aggiunta su richiesta: posto auto ...
Ripartizione dei costi
- Affitto netto
- CHF 2'370
- Costi aggiuntivi
- CHF 290
- Totale delle locazioni
- CHF 2'370
Dettagli immobile
- Disponibile dal
- 01.07.2026
- Stanze
- 4.5
- Anno di costruzione
- 2013
- Superficie abitabile
- 124 m²
- Piano
- 2°



