1 / 12

Attico in affitto - Pilatusstrasse 13a, 6052 Hergiswil NW

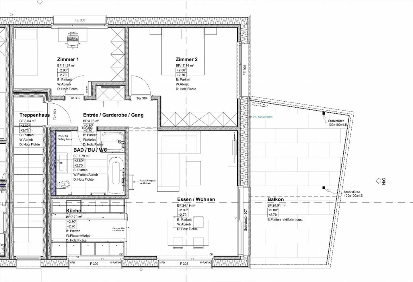
3.5 rooms • 114 m² • 2° piano
CHF 2’750.-
CHF 289 m² / year

Perché amerai questa proprietà

Elettrodomestici svizzeri di qualità

Ampio balcone di 25 m²

Vivere sano con legno massiccio

Organizza una visita

Prenota una visita con Goll oggi!

Goll
Questa descrizione è stata tradotta automaticamente da Tedesco.

Appartamento 3.5 stanze in casa in legno climatico

Vivere in una casa in legno climatico – nel cuore di Hergiswil (NW)

Affittiamo un appartamento 3.5 stanze di alta qualità nella nostra costruzione in legno – la tua nuova casa nella casa in legno climatico sostenibile.

I tuoi vantaggi a colpo d'occhio

- Elettrodomestici di alta qualità di produttori svizzeri

- Propria torre di lavaggio (lavatrice e asciugatrice) nell'appartamento

- Balcone molto grande (25 m2)

- Eccellente clima interno grazie al legno massiccio – previene problemi respiratori e aller...

Dettagli immobile

Disponibile dal
Su accordo
Stanze
3.5
Anno di costruzione
2022
Superficie abitabile
114
Piano

Caratteristiche

Balcone
Cantina
Internet

Agenzia

Località

Pilatusstrasse 13a, 6052 Hergiswil NW

Fonti