1 / 11

Appartamento in affitto - Schützenheimweg 13, 6012 Obernau

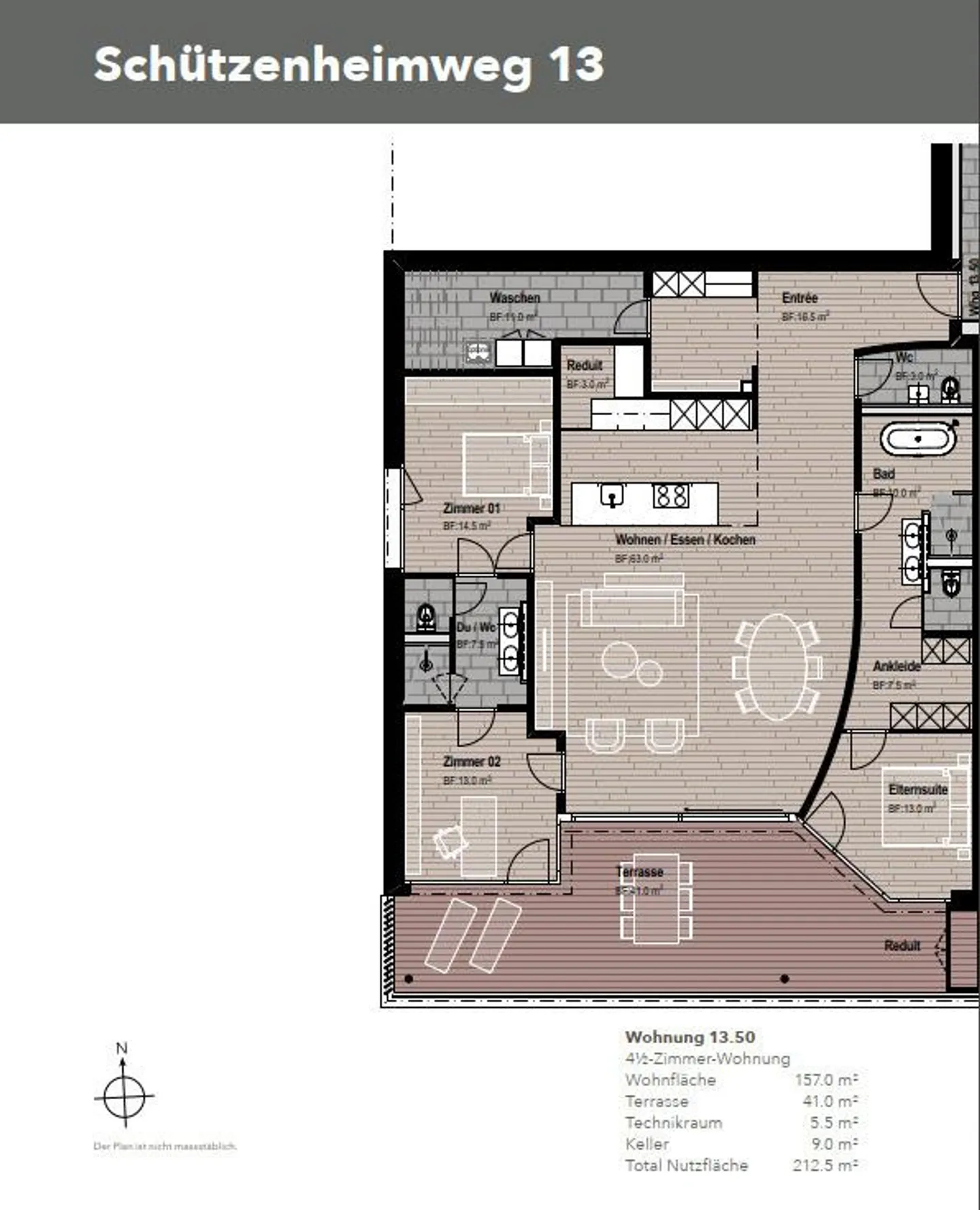
4.5 stanze • 157 m² • 1° piano
CHF 4’300
CHF 329 m² / year

Perché amerai questa proprietà

Vista mozzafiato sul Pilatus

Terrazza spaziosa con legno

Cucina moderna in granito

Organizza una visita

Prenota una visita oggi!

Die Falck Gruppe AG
Questa descrizione è stata tradotta automaticamente da Tedesco.

Bijoux di 4,5 stanze - la tua nuova casa al sonnenberg!

Nuovo appartamento nel bellissimo Obernau!

Immerso tra il Pilatus e il Sonnenberg, il nuovo sviluppo Schützenheim offre concetti abitativi interessanti in una posizione elevata a Obernau, garantendo una vista senza pari e un ambiente tranquillo.

Il pittoresco Obernau si trova in prossimità della popolare meta escursionistica di Eigenthal e può essere meravigliosamente combinato con un viaggio nella natura, offrendo al contempo un buon accesso alla vicina città di Lucerna.

Lo sviluppo colpisce per u...

Dettagli immobile

Disponibile dal
Su accordo
Stanze
4.5
Anno di costruzione
2024
Superficie abitabile
157
Piano

Caratteristiche

Garage
Balcone
Vista libera
Ascensore
Camino

Agenzia

Die Falck Gruppe AG
Indirizzo:Luzern, Ledergasse 11, 6004
Ref: M36_Schützenheimweg 13_4.5-ZWG 1.OG links_1001.mig-1353-5430183
Online da
22/10/2025
7 ore fa

Località

Schützenheimweg 13, 6012 Obernau

Fonti