Appartamento in affitto - Chemin De Maze 13, 3971 Chermignon
Perché amerai questa proprietà
Terrazza spaziosa e giardino
Cucina aperta completamente attrezzata
Due posti auto esterni inclusi
Organizza una visita
Prenota una visita oggi!
Appartamento 2.5 stanze
APPARTAMENTO NUOVO DI 2.5 STANZE IN AFFITTO A CHERMIGNON
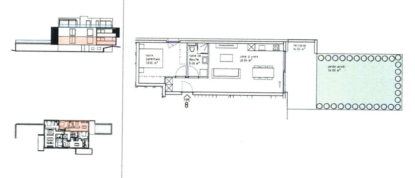
Vi offriamo in affitto un magnifico appartamento nuovo di 2.5 stanze, situato in Route de Maze 13 a Chermignon-d'en-Haut. Questo alloggio di circa 60 m², situato al piano terra di un edificio costruito nel 2025, offre un ambiente moderno e piacevole.
Si compone come segue:
Un ingresso con armadi a muro
Una cucina completamente attrezzata, aperta sul soggiorno
Un ampio soggiorno che dà accesso a una terrazza e a un giardino
Una grande camer...
Ripartizione dei costi
- Affitto netto
- CHF 1’400
- Costi aggiuntivi
- CHF 100
- Totale delle locazioni
- CHF 1’400
Dettagli immobile
- Disponibile dal
- Su accordo
- Stanze
- 2.5
- Bagni
- 1
- Superficie abitabile
- 60 m²




