Appartamento in affitto - 1227 Carouge GE
Perché amerai questa proprietà
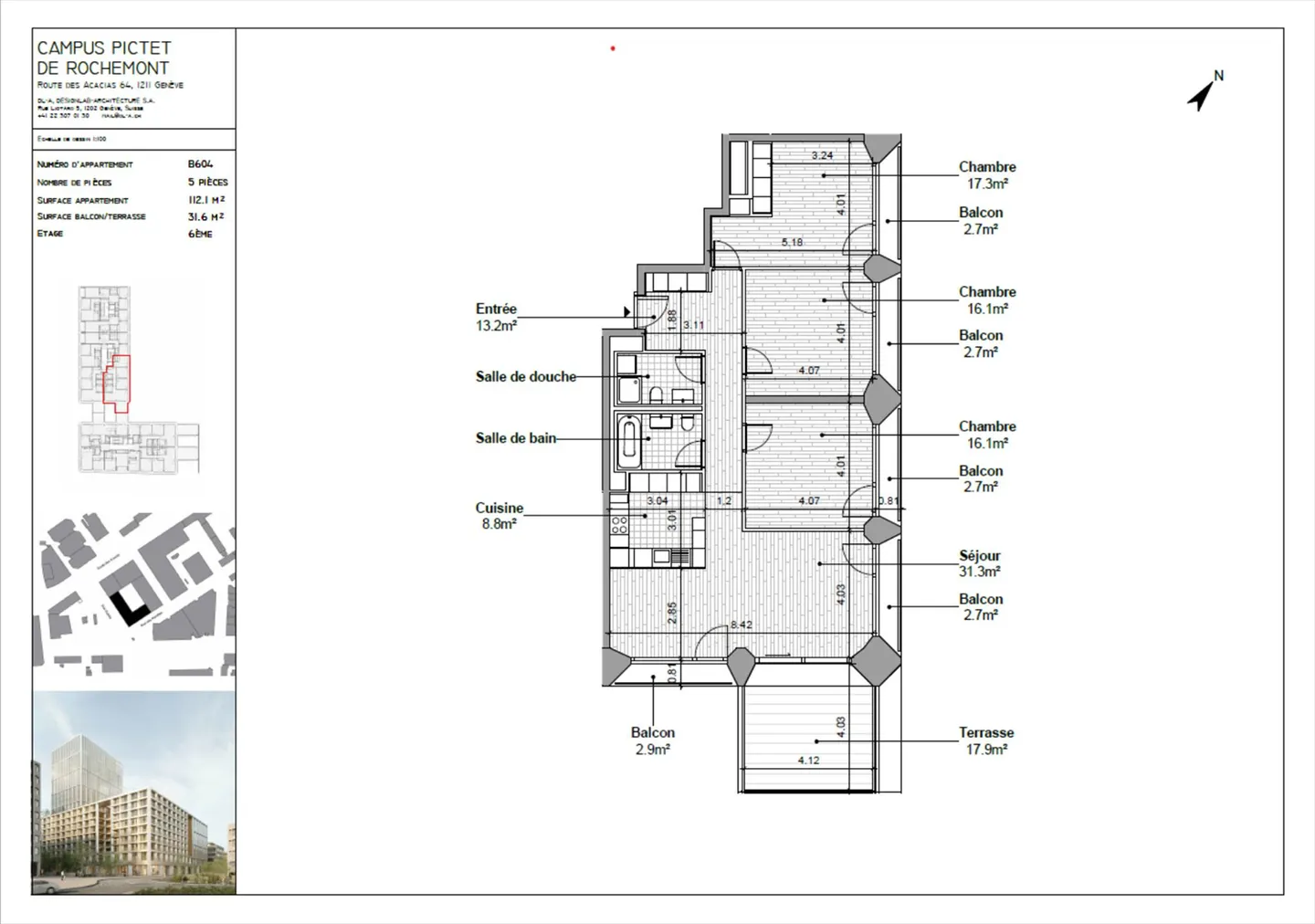
Cinque balconi soleggiati
Finiture di alta gamma
Certificazione energetica MINERGIE®
Organizza una visita
Prenota una visita oggi!
Appartamento 5 locali
Appartamento di lusso - 5 locali
Passage Subilia 5
Situato al sesto piano di un nuovo edificio nel quartiere PAV, questo appartamento di 5 locali unisce comfort moderno a finiture di alta qualità in un contesto urbano in espansione.
Questa proprietà è composta da un ingresso con armadi a muro a tutta altezza, una cucina completamente attrezzata aperta su un soggiorno luminoso, tre camere da letto confortevoli, un ampio bagno con wc e un bagno con doccia e wc con attacco per la lavatrice.
Cinque ...
Dettagli immobile
- Disponibile dal
- Su accordo
- Stanze
- 5
- Bagni
- 2
- Superficie abitabile
- 112 m²



