1 / 5

Appartamento in affitto - Chemin Taverney 12, 1218 Le Grand-Saconnex

3 rooms • 54 m²
CHF 1’660.-
CHF 369 m² / year

Perché amerai questa proprietà

Terrazza accogliente per rilassarsi

Cucina moderna semi-attrezzata

Comodo parcheggio esterno

Organizza una visita

Prenota una visita con RIBEIRO oggi!

RIBEIRO Aventino
MOSER VERNET & CIE SA
Questa descrizione è stata tradotta automaticamente da Francese.

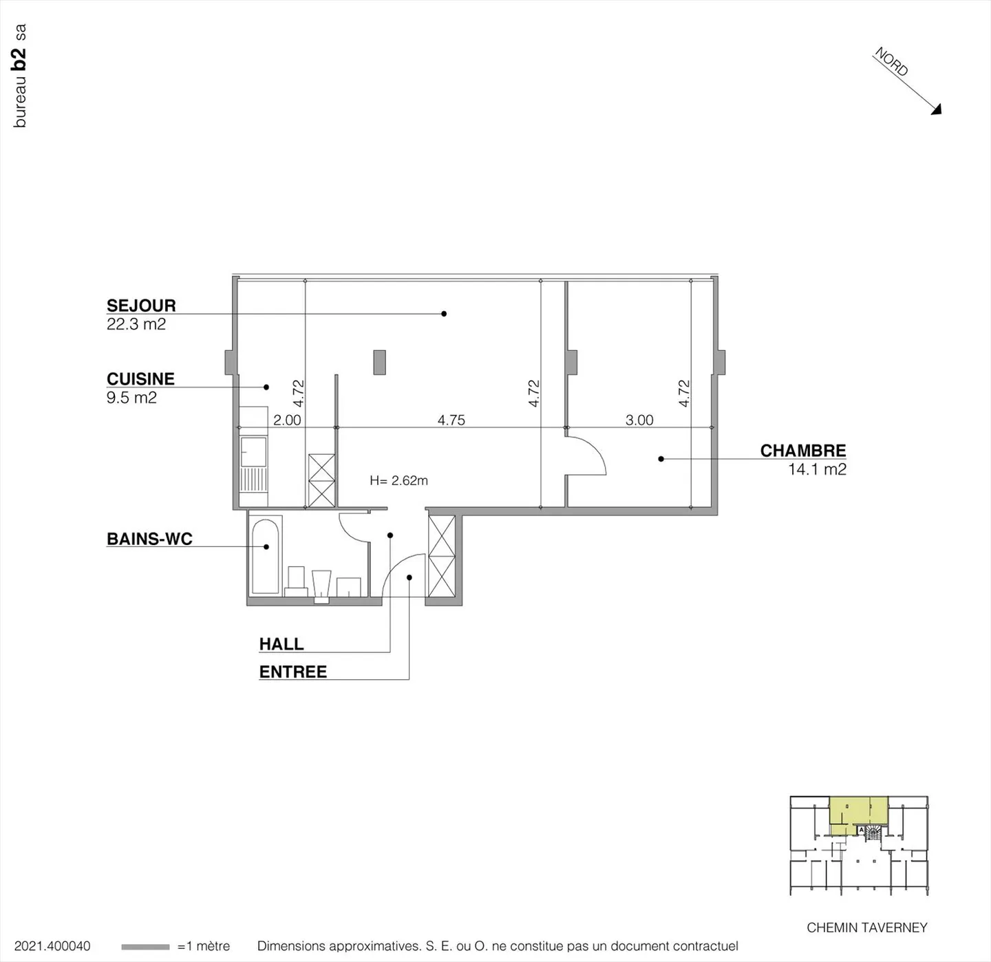
Appartamento 3 locali

GRAND-SACONNEX - Chemin Taverney 12 - 53m2

3 locali al piano terra comprendenti una cucina attrezzata e semi-equipaggiata (cappa), un soggiorno che si affaccia su una terrazza, una camera da letto, un bagno con wc. Cantina e lavanderia a disposizione. Parcheggio esterno obbligatorio a CHF 130.00/mese.

Dettagli immobile

Disponibile dal
Su accordo
Stanze
3
Superficie abitabile
54

Caratteristiche

Ascensore
Animali ammessi

Agenzia

MOSER VERNET & CIE SA

Località

Chemin Taverney 12, 1218 Le Grand-Saconnex

Fonti