Appartamento in affitto - Chemin De La Croix-De-Pierre 12, 1470 Estavayer-le-Lac
Perché amerai questa proprietà
Ambiente tranquillo e verde
Vicino al Lago di Neuchâtel
Parcheggio in garage comodo
Organizza una visita
Prenota una visita oggi!
Spazioso - vicino alle autostrade
La città di Estavayer si trova sulle rive del lago di Neuchâtel e offre molteplici attività; è anche una città medievale molto dinamica.
Il quartiere del ch. de la Croix-de-Pierre si trova sulle alture di Estavayer, vicino agli accessi autostradali, in un contesto tranquillo e verdeggiante.
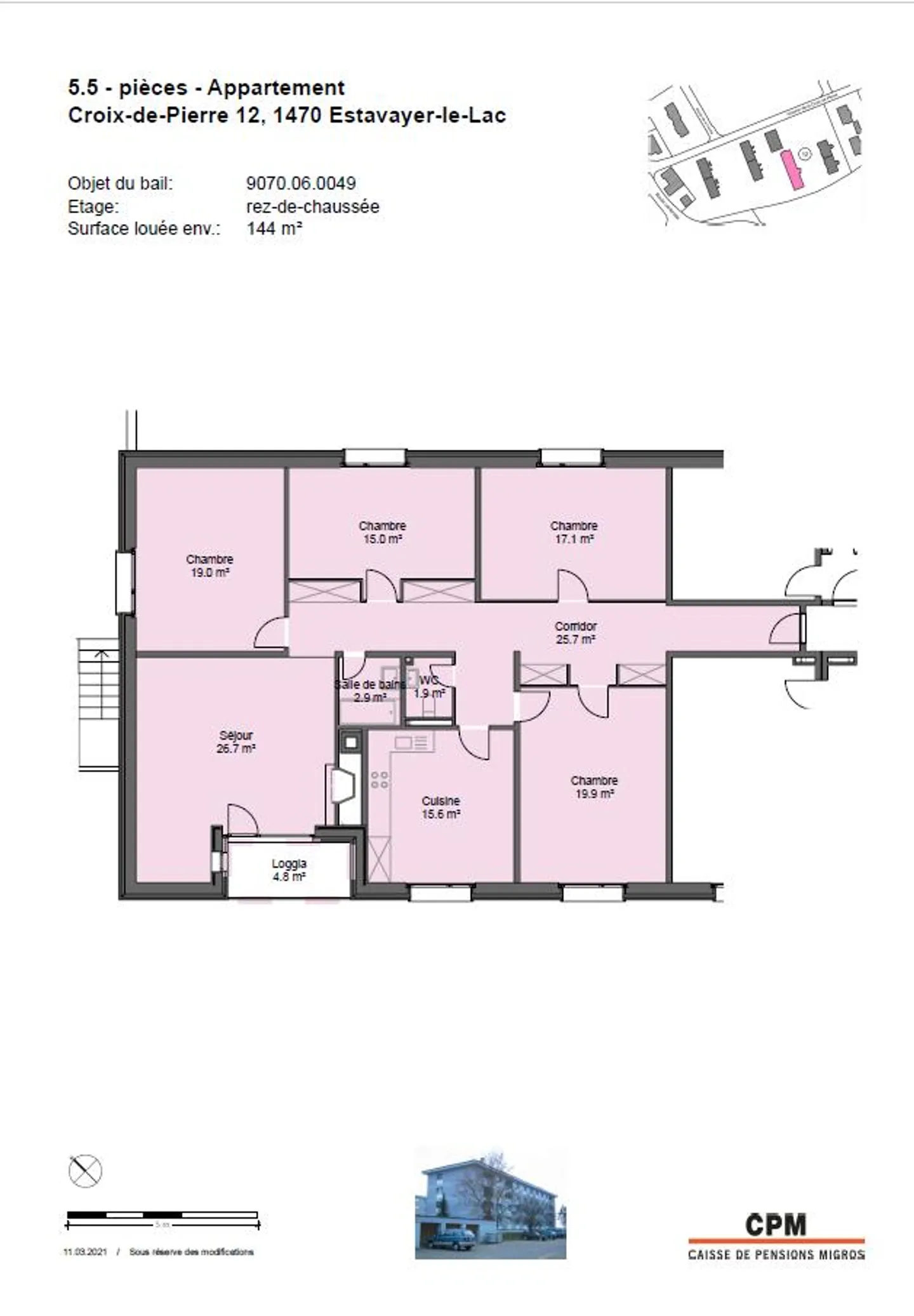
Comprende:
- Ingresso con armadi a muro
- Cucina chiusa attrezzata
- Soggiorno con balcone
- WC separato
- Bagno
- 4 camere da letto
- Colonna di lavaggio
- Cantina
Garage CHF 130.-/mese o posto auto esterno CHF 90....
Ripartizione dei costi
- Affitto netto
- CHF 2’240
- Costi aggiuntivi
- CHF 450
- Totale delle locazioni
- CHF 2’240
Dettagli immobile
- Disponibile dal
- 01.01.1970
- Stanze
- 5.5
- Anno di costruzione
- 1964
- Superficie abitabile
- 148 m²
- Superficie utilizzabile
- 148 m²
- Piano
- Terra



