Appartamento in affitto - Seefeldstrasse 11b, 8280 Kreuzlingen
Perché amerai questa proprietà
Ampio soggiorno con balcone
Ambiente adatto ai bambini
Accesso comodo ai mezzi pubblici
Organizza una visita
Prenota una visita con Nic oggi!
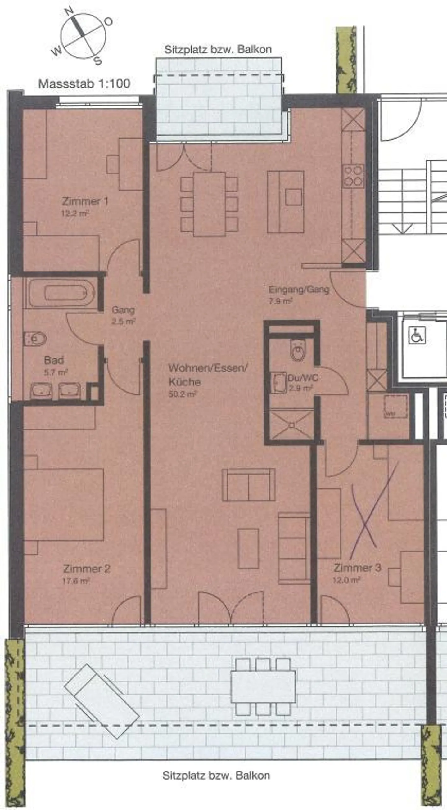
Appartamento 4.5 camere adatto ai bambini con balcone
In una posizione attraente, affittiamo un luminoso appartamento di 4.5 stanze al 2° piano in Seefeldstrasse 11b a Kreuzlingen. L'appartamento offre un piacevole comfort abitativo e colpisce per una disposizione pratica degli spazi e una bella vista.
L'area soggiorno ha accesso diretto al balcone/terrazza e invita a sostare. L'appartamento è dotato di una doccia e di un ulteriore WC separato. La cucina è dotata di una lavastoviglie.
L'appartamento include una cantina, e un ascensore offre un access...
Ripartizione dei costi
- Affitto netto
- CHF 2’190
- Costi aggiuntivi
- CHF 260
- Totale delle locazioni
- CHF 2’190
Dettagli immobile
- Disponibile dal
- Su accordo
- Stanze
- 4.5
- Superficie abitabile
- 111 m²
- Piano
- 2°



