Appartamento in affitto - Teufener Strasse 115, 9000 St. Gallen
Perché amerai questa proprietà
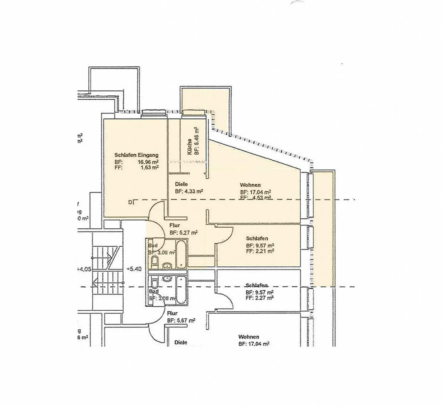
Spazi abitativi luminosi
Due balconi soleggiati
Ottimi collegamenti di trasporto
Organizza una visita
Prenota una visita con Yannik oggi!
Vivere con stile nel centro
Punti salienti dell'appartamento e dei dintorni:
- Spazi abitativi luminosi e due balconi
- Ottime connessioni di trasporto
- A 5 minuti a piedi dal centro di San Gallo!
I punti più importanti in sintesi:
Animali domestici: In linea di massima sì
Ascensore: Sì
Parcheggio: Sì - Box garage singolo disponibile per CHF 130.- / mese
Per un appuntamento di visita o ulteriori informazioni sull'appartamento, vi preghiamo di contattarci tramite il modulo di contatto. Grazie.
Puoi trovare altri appartamenti intere...
Ripartizione dei costi
- Affitto netto
- CHF 1’390
- Costi aggiuntivi
- CHF 210
- Totale delle locazioni
- CHF 1’390
Dettagli immobile
- Disponibile dal
- Su accordo
- Stanze
- 3
- Superficie abitabile
- 70 m²
- Piano
- 1°



