1 / 7

Appartamento in affitto - Sonnmattstrasse 11, 8842 Unteriberg

4.5 rooms • 120 m² • 12° piano
CHF 2’460.-
CHF 246 m² / year

Perché amerai questa proprietà

3 balconi/terrazze soleggiati

Bagni moderni di lusso

Ingresso privato per comfort

Organizza una visita

Prenota una visita con Fässler oggi!

Fässler
Questa descrizione è stata tradotta automaticamente da Tedesco.

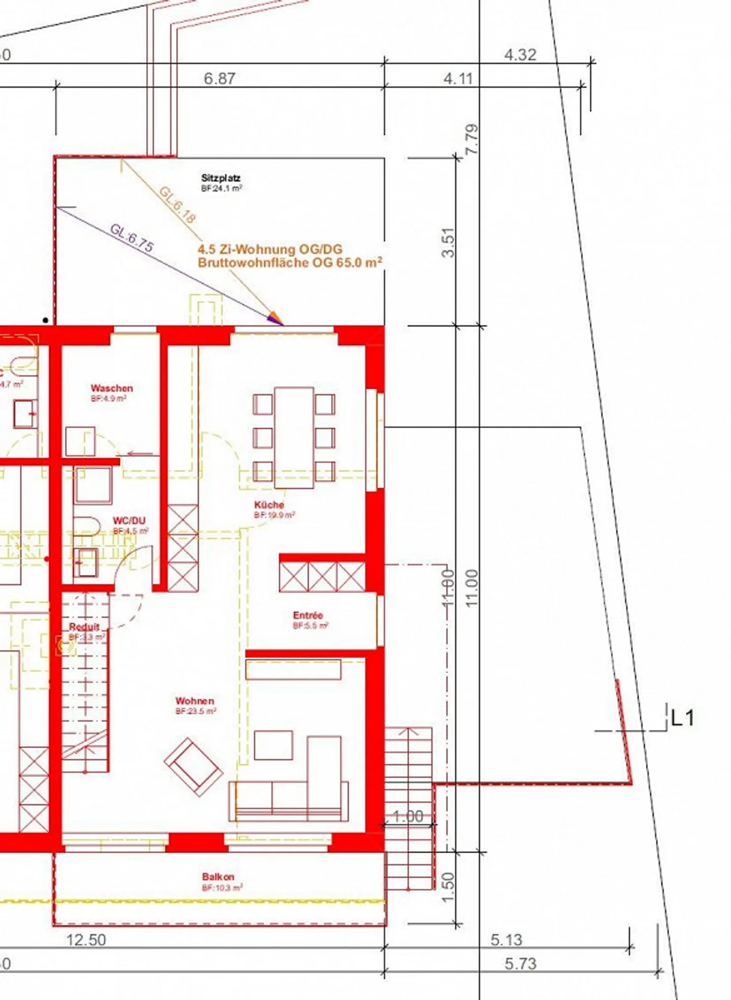
Nuovo appartamento di 4,5 stanze - parte della casa

Questo spazioso e luminoso appartamento di nuova costruzione di 4,5 stanze colpisce per il suo comfort e un'esperienza abitativa unica - come in una casa unifamiliare. Grazie a un ingresso separato tramite una scala esterna, godrete della massima privacy.

Punti salienti:

3 ampi balconi / terrazze con molta luce solare

2 bagni moderni

Lavanderia separata nell'appartamento

2 pratici ripostigli

Riscaldamento a pavimento in tutte le stanze

Cucina di alta qualità e guardaroba integrato del falegname

In aggiu...

Dettagli immobile

Disponibile dal
Su accordo
Stanze
4.5
Anno di costruzione
2025
Superficie abitabile
120
Piano
12°
Piani dell'edificio
2

Caratteristiche

Garage
Balcone
Parcheggio
Vista libera

Agenzia

Località

Sonnmattstrasse 11, 8842 Unteriberg

Fonti