1 / 11

Appartamento in affitto - Kurzfeldstrasse 11, 8500 Frauenfeld

6.5 rooms • 170 m² • 12° piano
CHF 2’690.-
CHF 190 m² / year

Perché amerai questa proprietà

Vista mozzafiato su Frauenfeld

Loggia ampia per il relax

A soli 500m dalla stazione

Organizza una visita

Prenota una visita con Kern oggi!

Kern
Bodensee Immobilien AG
Questa descrizione è stata tradotta automaticamente da Tedesco.

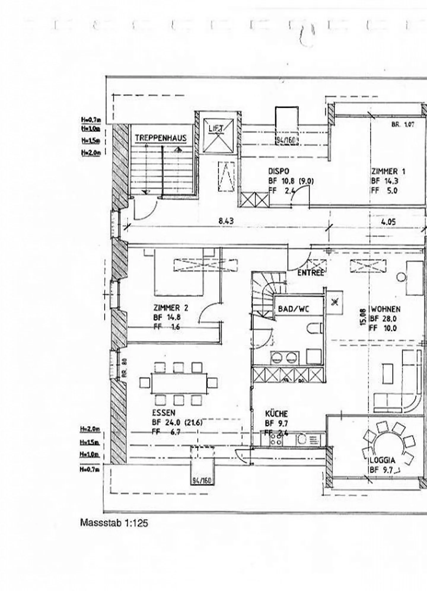
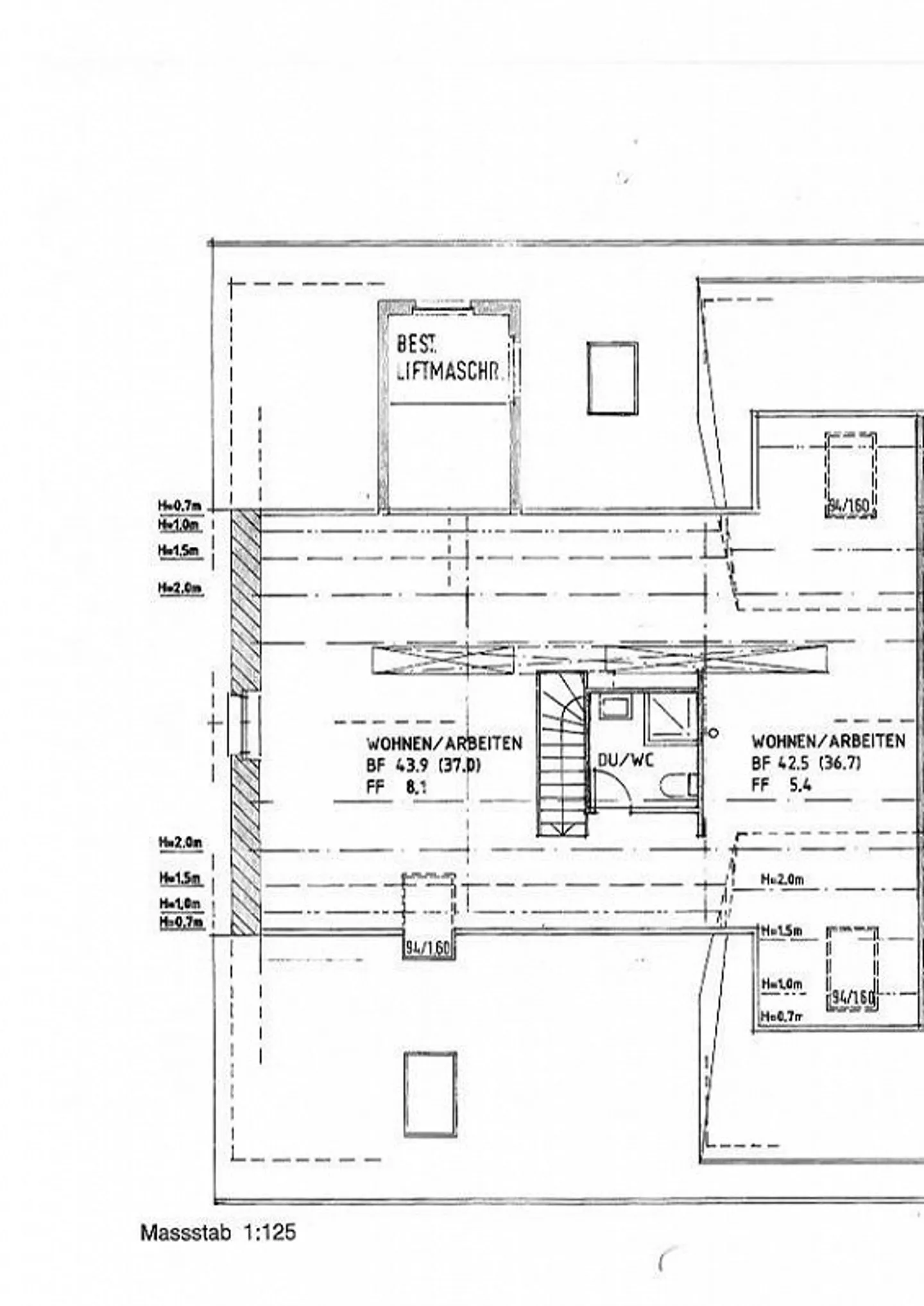
Maisonette di 6,5 stanze, a soli 500 m dalla stazione

La maisonette di 6,5 stanze, situata centralmente, ha molto da offrire:

- con 170 m2 offre tanto spazio quanto una casa unifamiliare

- spazio per fino a 6 persone - ideale anche come appartamento condiviso

- grazie all'altezza dell'edificio e alla posizione negli ultimi due piani, la vista su Frauenfeld è grandiosa

- pavimento in parquet di rovere

- due bagni (piano inferiore: bagno / WC + piano superiore: doccia / WC)

- loggia spaziosa

- posti auto in garage sotterraneo possono essere affittati separa...

Dettagli immobile

Disponibile dal
Su accordo
Stanze
6.5
Superficie abitabile
170
Piano
12°
Piani dell'edificio
4

Caratteristiche

Balcone
Vista libera
Ascensore
Cantina
Internet

Agenzia

Bodensee Immobilien AG
Indirizzo:Winterthur, Wieshofstrasse, 8408
Ref: 1122

Località

Kurzfeldstrasse 11, 8500 Frauenfeld

Fonti