Appartamento in affitto - Eichhof 11, 8522 Häuslenen
Perché amerai questa proprietà
Cucina moderna con granito
Ampio balcone per relax
Stanze luminose con parquet
Organizza una visita
Prenota una visita con Wirth oggi!
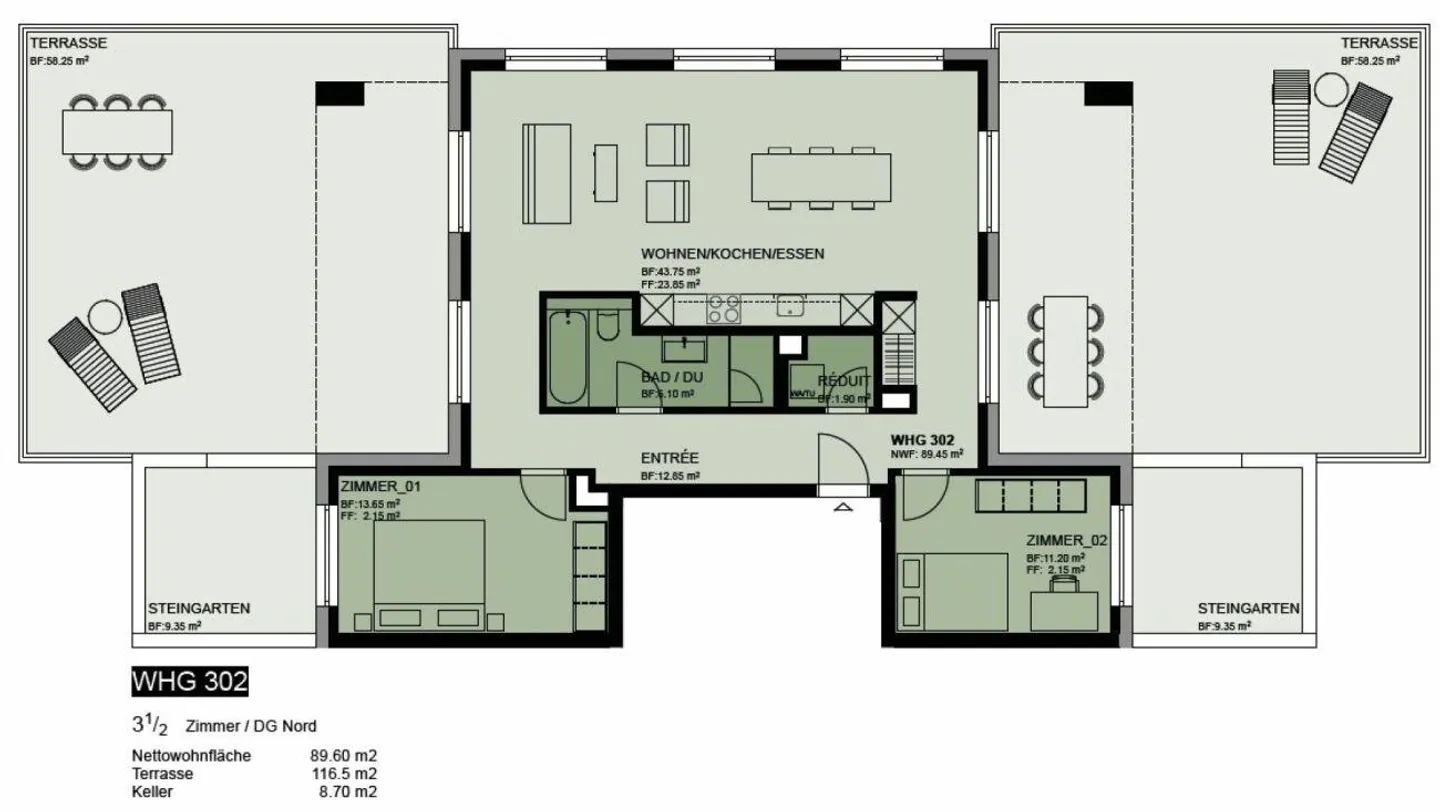
Appartamento attico affascinante di 3,5 stanze con vista mozzafiato a Häus...
A partire dal 01.04.2026, affittiamo questo appartamento luminoso con vista mozzafiato.
Nella bella comune di Aadorf nel Thurgau, affittiamo questo moderno appartamento di 3,5 stanze a partire dal 01.04.2026.
I punti salienti dell'appartamento a colpo d'occhio:
- Cucina moderna con piano in granito e molto spazio di stoccaggio
- Bagno spazioso con vasca e doccia
- Pavimento in parquet di rovere in tutte le stanze
- Stanze luminose e piene di luce
- Ampio balcone
- Lavatrice e asciugatrice proprie
- Armad...
Ripartizione dei costi
- Affitto netto
- CHF 2’330
- Costi aggiuntivi
- CHF 260
- Totale delle locazioni
- CHF 2’330
Dettagli immobile
- Disponibile dal
- Su accordo
- Stanze
- 3.5
- Anno di costruzione
- 2016
- Superficie abitabile
- 90 m²
- Piano
- 3°



