Appartamento in affitto - Bahnhofstrasse 11, 8552 Felben-Wellhausen
Perché amerai questa proprietà
Cucina moderna elegante
Camera in parquet di rovere
Spazio abitativo climatizzato
Organizza una visita
Prenota una visita con Albert oggi!
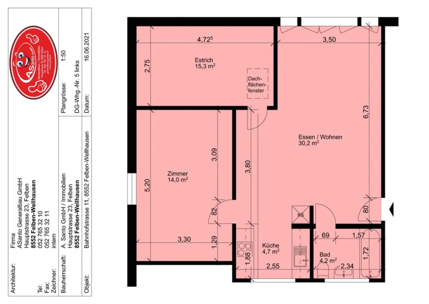
Appartamento mansardato di 2,5 stanze
Un appartamento mansardato moderno e climatizzato di 2 stanze a Felben-Wellhausen.
Cucina moderna molto bella e ben attrezzata.
La camera da letto è rivestita in parquet di rovere e l'area soggiorno-pranzo e cucina è dotata di piastrelle in vinile.
Un posto auto in garage a CHF 135.- o un posto auto a CHF 70.- possono essere affittati.
Ripartizione dei costi
- Affitto netto
- CHF 1'450
- Costi aggiuntivi
- CHF 180
- Totale delle locazioni
- CHF 1'450
Dettagli immobile
- Disponibile dal
- Su accordo
- Stanze
- 2
- Superficie abitabile
- 55 m²


