1 / 6

Appartamento in affitto - Rue De L'evole 108, 2000 Neuchâtel

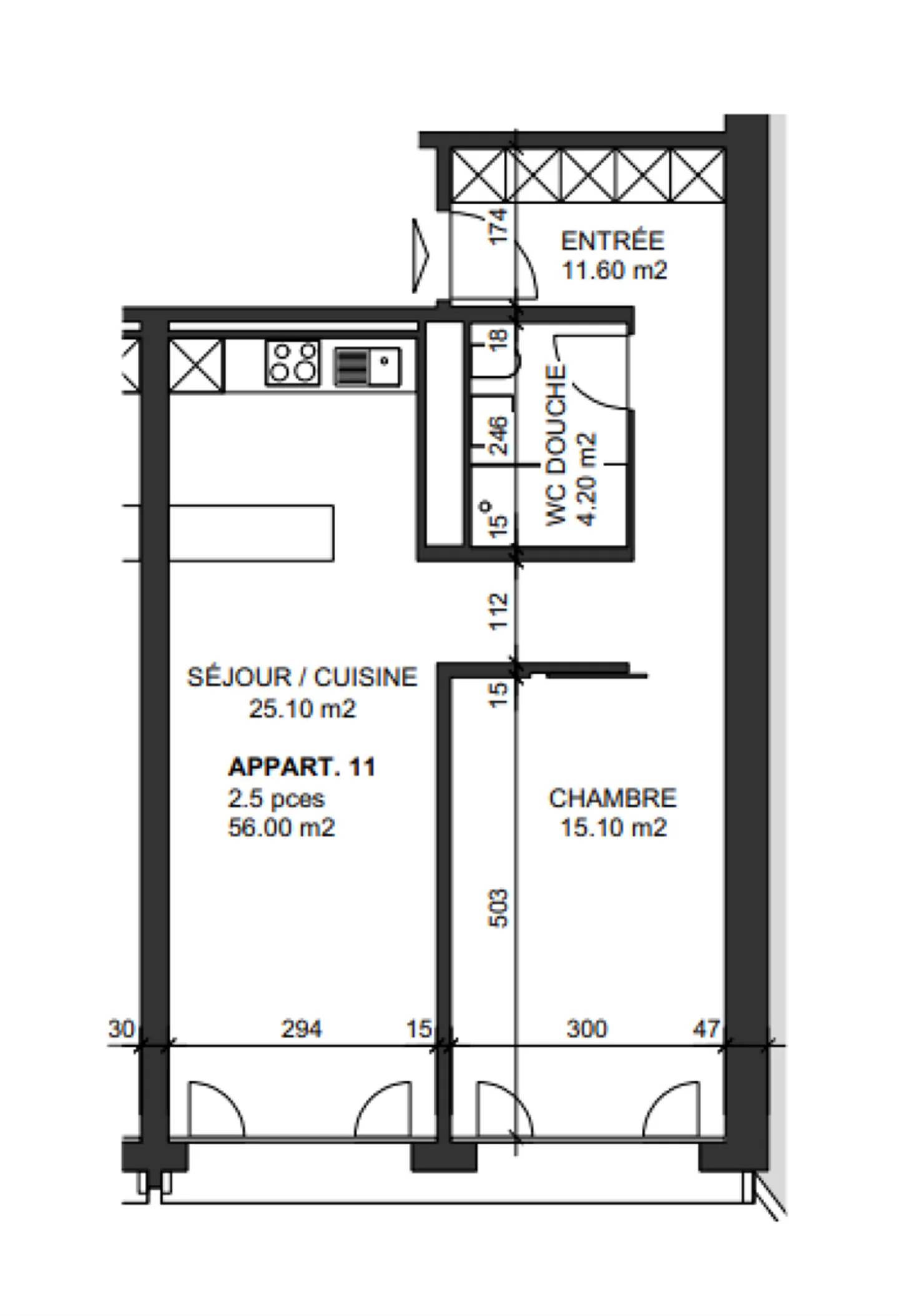
2.5 stanze • 56 m²
CHF 1’620
CHF 347 m² / year

Perché amerai questa proprietà

Edificio completamente ristrutturato

Vicino al lago

Cucina moderna attrezzata

Organizza una visita

Prenota una visita oggi!

Gerance CPCN
Questa descrizione è stata tradotta automaticamente da Francese.

Appartamento 2.5 locali

Appartamento 2.5 locali completamente nuovo

Magnifico appartamento di 2.5 locali vicino al lago

In un edificio completamente ristrutturato, offriamo diversi appartamenti nuovi.

Questo appartamento comprende: Una camera da letto, soggiorno, ingresso, cucina attrezzata, bagno/doccia, cantina.

Data di ingresso: gennaio 2026 o da concordare.

Contatto per le visite:

Gestione CPCN

Rue du Pont 25

2300 La Chaux-de-Fonds

Ripartizione dei costi

Affitto netto
CHF 1’620
Costi aggiuntivi
CHF 180
Totale delle locazioni
CHF 1’620

Dettagli immobile

Disponibile dal
Su accordo
Stanze
2.5
Superficie abitabile
56

Caratteristiche

Ascensore

Agenzia

Gerance CPCN
Online da
22/10/2025
12 ore fa

Località

Rue De L'evole 108, 2000 Neuchâtel

Fonti