Appartamento in affitto - Rives De La Broye 10, 1530 Payerne
Perché amerai questa proprietà
Design moderno e funzionale
Vicino a negozi e cinema
A 8 min dalla stazione
Organizza una visita
Prenota una visita oggi!
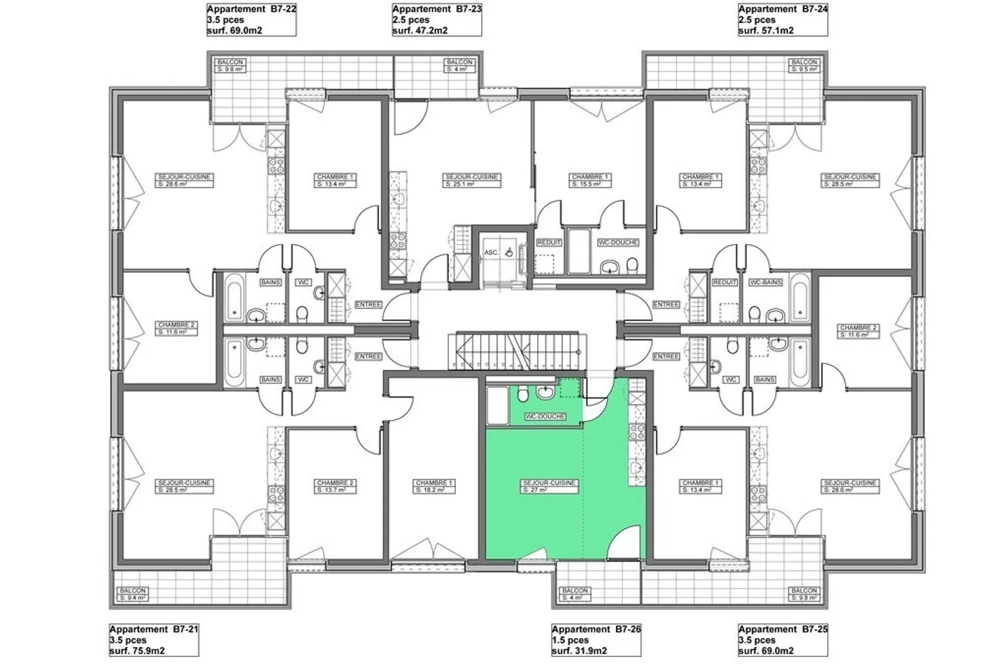
Bel monolocale ideale per una persona sola o una giovane coppia
Payerne è un ottimo posto dove vivere: guarda il nostro video: [ https://youtu.be/TvHSUhhMTIg ](https://youtu.be/TvHSUhhMTIg)
Dinamica con il suo aerodromo e il karting, la terra di accoglienza di Solar Impulse ti offre un'esperienza a metà strada tra città e villaggio. Negozi, cinema e stazione ferroviaria ti aspettano in loco. Scuole che vanno dalla primaria alla secondaria, un ginnasio intercomunale e una scuola professionale rendono il comune vivace e adatto alle famiglie.
La nuova fermata del...
Ripartizione dei costi
- Affitto netto
- CHF 920
- Costi aggiuntivi
- CHF 105
- Totale delle locazioni
- CHF 920
Dettagli immobile
- Disponibile dal
- 01.12.2025
- Stanze
- 1
- Anno di costruzione
- 2017
- Superficie abitabile
- 32 m²
- Piano
- 2°



