Appartamento in affitto - Itingerstrasse 10, 4450 Sissach
Perché amerai questa proprietà
Ristrutturato nel 2014
Vicino alla stazione
Parco giochi in proprietà
Organizza una visita
Prenota una visita con Wincasa oggi!
La tua nuova casa nel bellissimo Sissach
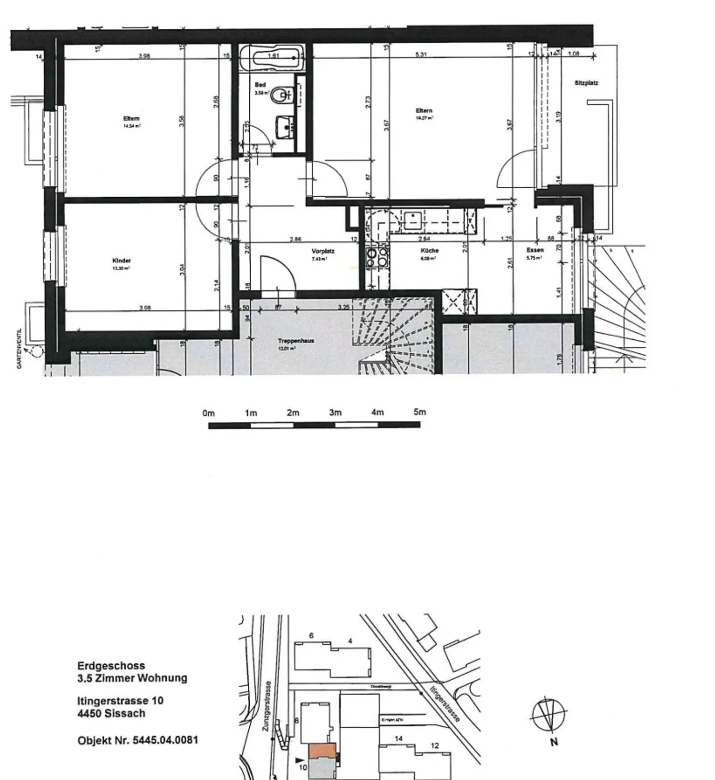
Affittiamo questo appartamento di 3,5 stanze in Itingerstrasse 10 a Sissach immediatamente o su appuntamento. La proprietà si trova in una posizione eccellente, vicino alla stazione e alla scuola.
Gli appartamenti sono stati tutti ristrutturati nel 2014 e quindi hanno una bella finitura.
Ulteriori punti chiave sull'appartamento/proprietà:
- Pavimento in parquet nel soggiorno
- Pavimenti in linoleum in tutte le stanze e corridoio
- Pavimento piastrellato nei bagni + cucina
- Bel spazio esterno
- Piant...
Ripartizione dei costi
- Affitto netto
- CHF 1’700
- Costi aggiuntivi
- CHF 250
- Totale delle locazioni
- CHF 1’700
Dettagli immobile
- Disponibile dal
- Su accordo
- Stanze
- 3.5
- Anno di costruzione
- 1978
- Anno di ristrutturazione
- 2014
- Superficie abitabile
- 72 m²
- Piano
- Terra



