Appartamento in affitto - Haldenweg 10, 4310 Rheinfelden
Perché amerai questa proprietà
Camere spaziose con ripostiglio
Ampio balcone soleggiato
Accesso con ascensore a tutti i piani
Organizza una visita
Prenota una visita con Privera oggi!
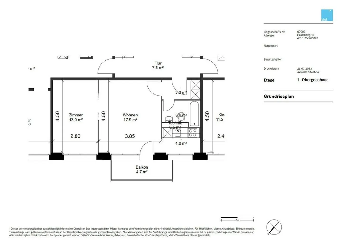
An ruhiger Lage vermieten wir per 16.01.2026 oder nach Vereinbarung eine charmante Wohnung bestens geeignet für Singles oder ein Paar. Die geräumigen Zimmer bieten nebst viel Stauraum, eine ideale Wohnungsaufteilung. Der grosszügige Balkon mit Sicht ins Grüne lädt zudem zum Verweilen mit Freunden und Familie ein.
Ausstattung:
- Wohn- und Schlafzimmer mit Laminatboden
- Küche und Bad mit Plattenboden
- Bad mit Badewanne
- praktischer Einbauschrank für mehr Stauraum
- Küche mit Geschirrwaschmaschine und...
Ripartizione dei costi
- Affitto netto
- CHF 1’170
- Costi aggiuntivi
- CHF 160
- Totale delle locazioni
- CHF 1’170
Dettagli immobile
- Disponibile dal
- Su accordo
- Stanze
- 2
- Superficie abitabile
- 41 m²
- Piano
- 1°



