Appartamento in affitto - Eggrainweg 10, 4402 Frenkendorf
Perché amerai questa proprietà
Cucina a vista accogliente
Circondato da verde
Breve passeggiata per il treno
Organizza una visita
Prenota una visita con Sammelbesichtigung: oggi!
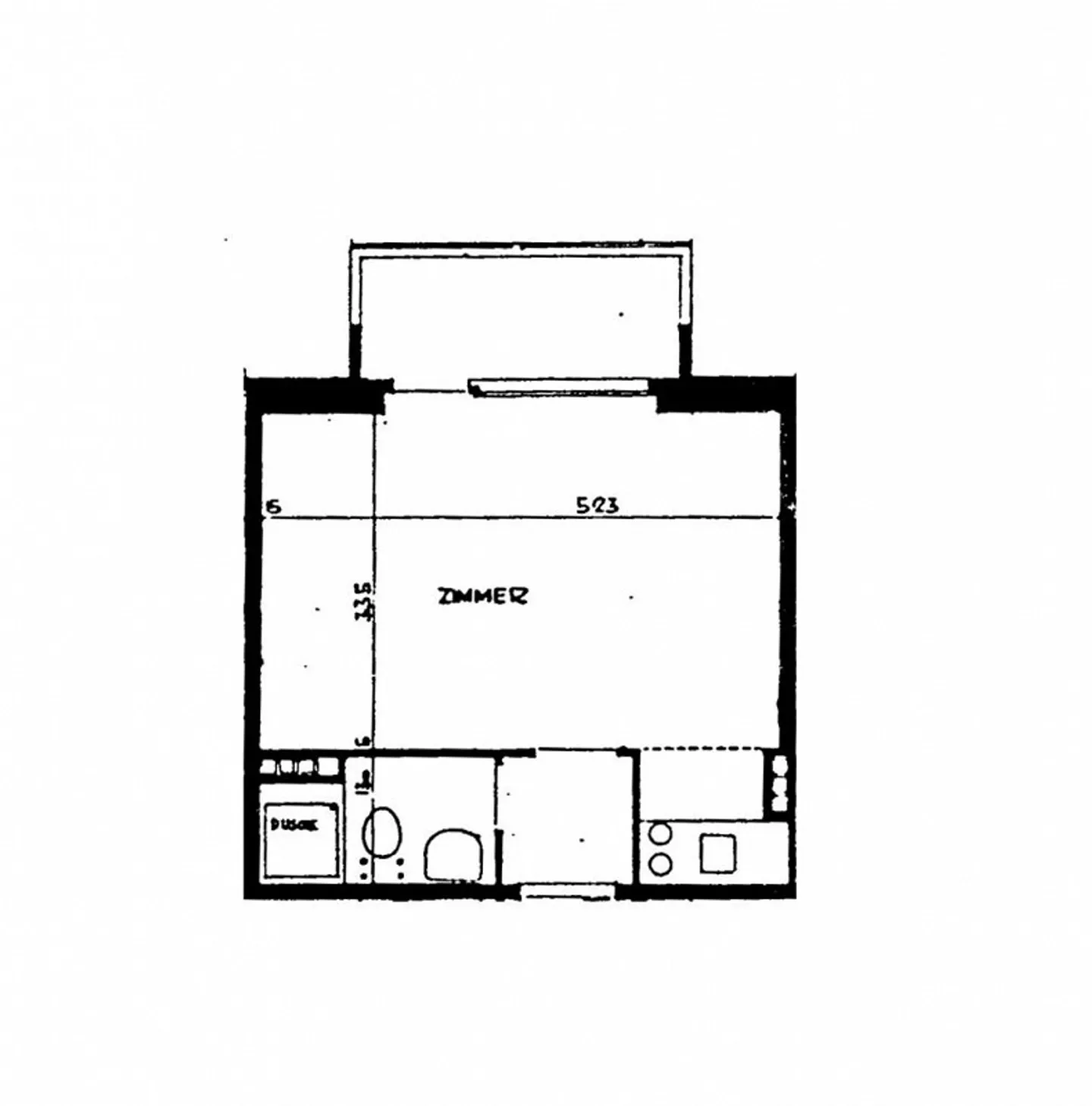
Luminoso appartamento di 1 stanza con balcone
Su appuntamento, affittiamo questo luminoso appartamento di 1 stanza in Eggrainweg 10 a Frenkendorf.
L'appartamento viene affittato con il seguente standard:
- Stanza con angolo cottura e pavimento in parquet
- Bagno con doccia
- Balcone
- Nessun ascensore
L'appartamento è circondato da ampi spazi verdi ed è a pochi minuti a piedi dalla stazione ferroviaria di Frenkendorf.
Abbiamo suscitato il tuo interesse? Una visita di gruppo si terrà giovedì 12.02.2026 dalle 16:30 alle 17:00. Il campanello sarà...
Ripartizione dei costi
- Affitto netto
- CHF 730
- Costi aggiuntivi
- CHF 100
- Totale delle locazioni
- CHF 730
Dettagli immobile
- Disponibile dal
- Su accordo
- Stanze
- 1
- Anno di costruzione
- 1962
- Anno di ristrutturazione
- 2006
- Superficie abitabile
- 25 m²
- Piano
- Terra



