Attico in affitto - Seebnerstrasse 1, 8185 Winkel
Perché amerai questa proprietà
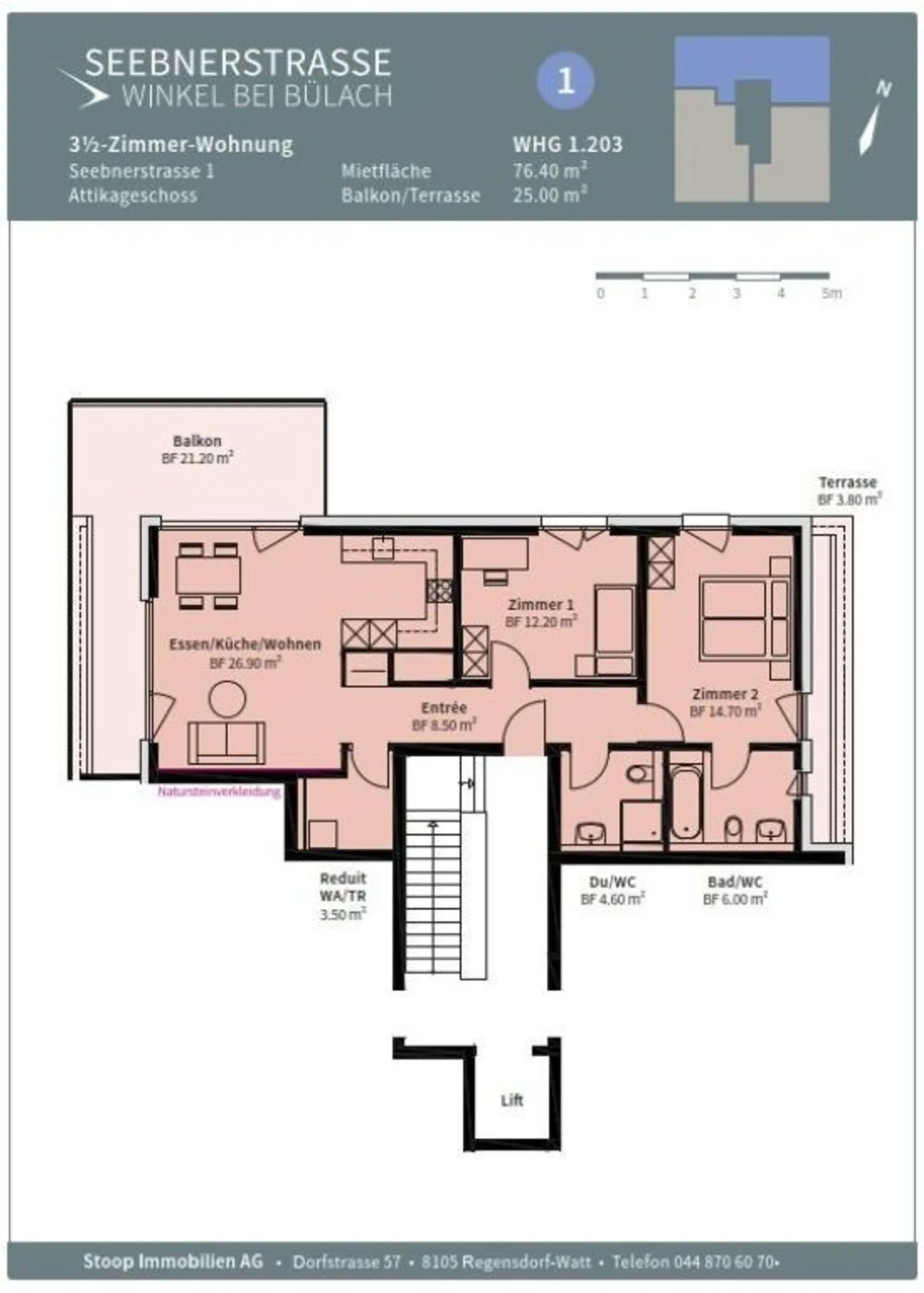
Elegante parete in pietra
Automazione domestica
Ampia terrazza accogliente
Organizza una visita
Prenota una visita oggi!
Appartamento attico elegante in un edificio ben curato!
Stai cercando un appartamento attico moderno in un ambiente ben curato e moderno? Questo appartamento di alta qualità offre una combinazione perfetta di design esclusivo, attrezzature all'avanguardia e comfort lussuoso - un'oasi di benessere, perfettamente situata vicino all'area ricreativa locale.
I punti salienti in sintesi:
* Elegante parete in pietra nel soggiorno: Crea un punto forte nobile e conferisce alla spaziosa e luminosa stanza un'atmosfera particolare
* Automazione dell'edificio: Con l...
Ripartizione dei costi
- Affitto netto
- CHF 2’750
- Costi aggiuntivi
- CHF 350
- Totale delle locazioni
- CHF 2’750
Dettagli immobile
- Disponibile dal
- 01.01.1970
- Stanze
- 3
- Superficie abitabile
- 65 m²
- Piano
- -2°




