Appartamento in affitto - Route De Rabou 1, 1882 Gryon
Perché amerai questa proprietà
Vista panoramica sulle montagne
Cucina aperta moderna
Ampio balcone per rilassarsi
Organizza una visita
Prenota una visita oggi!
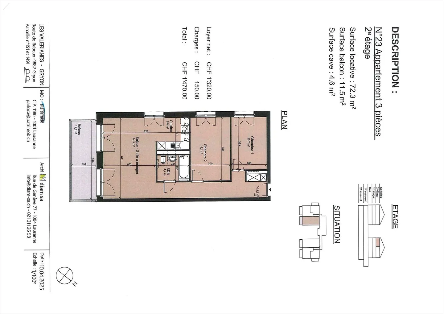
Magnifico appartamento di 3 stanze nuovo con vista panoramica
Appartamento di 3 stanze nuovo con vista panoramica in un nuovo edificio.
Siamo lieti di offrirvi questo appartamento di 3 stanze a Gryon, nel cuore delle Alpi vaudese.
Punti salienti dell'appartamento:
Nuovo edificio, completamento a partire dal 1 ottobre 2025
Cucina moderna, aperta, completamente attrezzata
Nuovi materiali di alta qualità per un interno elegante e accogliente
Vista panoramica eccezionale
Stanze luminose su due livelli, che offrono spazio e intimità
Grande balcone per godere de...
Dettagli immobile
- Disponibile dal
- Su accordo
- Stanze
- 3
- Superficie abitabile
- 72 m²



