Appartamento in affitto - Parkweg 1, 4852 Rothrist
Perché amerai questa proprietà
Cucina aperta con lavastoviglie
Balcone con ripostiglio
Strutture sportive nelle vicinanze
Organizza una visita
Prenota una visita con Juliette oggi!
Vivere centrale, moderno e tranquillo!
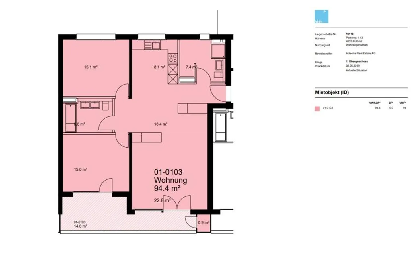
Nel complesso residenziale Parkweg 1 a Rothrist, affittiamo un bel appartamento di 3,5 locali dal 01.06.2026 o su accordo. Lasciati convincere dai seguenti punti:
- Pavimento in parquet nel soggiorno e nella camera da letto, così come nel corridoio
- Cucina aperta con vetroceramica e lavastoviglie
- Doccia / WC e bagno / WC
- Riscaldamento a pavimento in tutto l'appartamento
- Armadi a muro
- Balcone con ripostiglio
- Cantina
- Collegamenti per torre di lavaggio disponibili
Nelle vicinanze troverai la pi...
Ripartizione dei costi
- Affitto netto
- CHF 1'840
- Costi aggiuntivi
- CHF 350
- Totale delle locazioni
- CHF 1'840
Dettagli immobile
- Disponibile dal
- Su accordo
- Stanze
- 3.5
- Anno di costruzione
- 2005
- Superficie abitabile
- 94 m²
- Piano
- 1°



