Appartamento in affitto - Hofackerstrasse 1, 4625 Oberbuchsiten
Perché amerai questa proprietà
Ampio soggiorno luminoso
Altezza soffitti 2,80m
Lavanderia privata in cucina
Organizza una visita
Prenota una visita con Jeannine oggi!
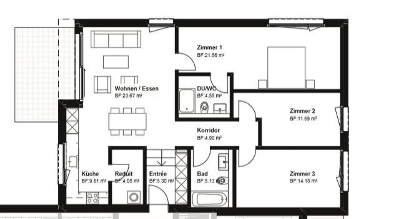
Appartamento 4,5 stanze in un quartiere adatto alle famiglie
Questo accogliente appartamento 4½ stanze ha tutto ciò che il tuo cuore desidera.
L'ampio ingresso con armadi a muro e attaccapanni offre molto spazio per riporre. Dall'ingresso si accede direttamente al soggiorno e alla sala da pranzo aperti. Questa stanza è inondata di luce ed è ideale per un arredamento individuale. Un punto forte di tutto l'appartamento è l'altezza della stanza di 2,80 m.
La cucina attrezzata è dotata di elettrodomestici di alta qualità. Adiacente alla cucina si trova il rid...
Ripartizione dei costi
- Affitto netto
- CHF 2’000
- Costi aggiuntivi
- CHF 310
- Totale delle locazioni
- CHF 2’000
Dettagli immobile
- Disponibile dal
- 01.04.2026
- Stanze
- 4.5
- Superficie abitabile
- 104 m²
- Superficie utilizzabile
- 104 m²
- Piano
- 1°




