Appartamento in affitto - Friedbergstrasse 1, 9240 Uzwil
Perché amerai questa proprietà
Vita in standard Minergie
A pochi passi dalla stazione
Ideale per pendolari
Organizza una visita
Prenota una visita oggi!
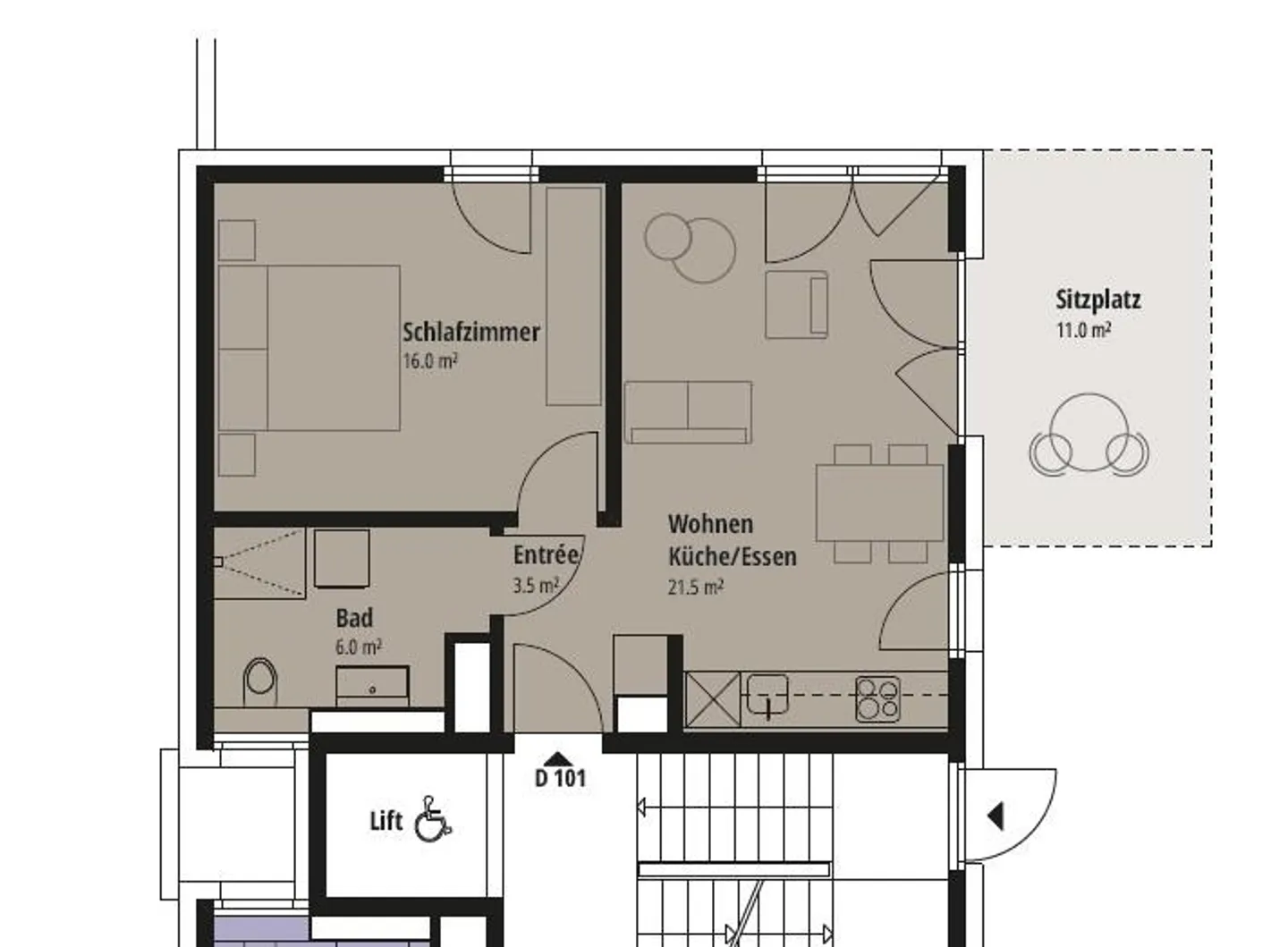
Appartamento 2½ locali al piano terra D101
Friedberg Station - Il tuo spazio abitativo centrale a Uzwil
Che tu sia single, coppia o famiglia, i tre nuovi edifici residenziali in standard Minergie sulla Friedbergstrasse a Uzwil soddisfano esigenze abitative estremamente versatili. La stazione ferroviaria e il centro di Uzwil sono a una comoda distanza a piedi, in particolare per i pendolari, la posizione è ideale.
Un posto auto nel garage sotterraneo è disponibile per CHF 140.00/mese.
Non vediamo l'ora di sentirti.
Ripartizione dei costi
- Affitto netto
- CHF 1’340
- Costi aggiuntivi
- CHF 170
- Totale delle locazioni
- CHF 1’340
Dettagli immobile
- Disponibile dal
- Su accordo
- Stanze
- 2.5
- Anno di costruzione
- 2019
- Superficie abitabile
- 47 m²
- Piano
- Terra
- Piani dell'edificio
- 5



