1 / 10

Appartamento in affitto - Bodenagger 1, 9466 Sennwald

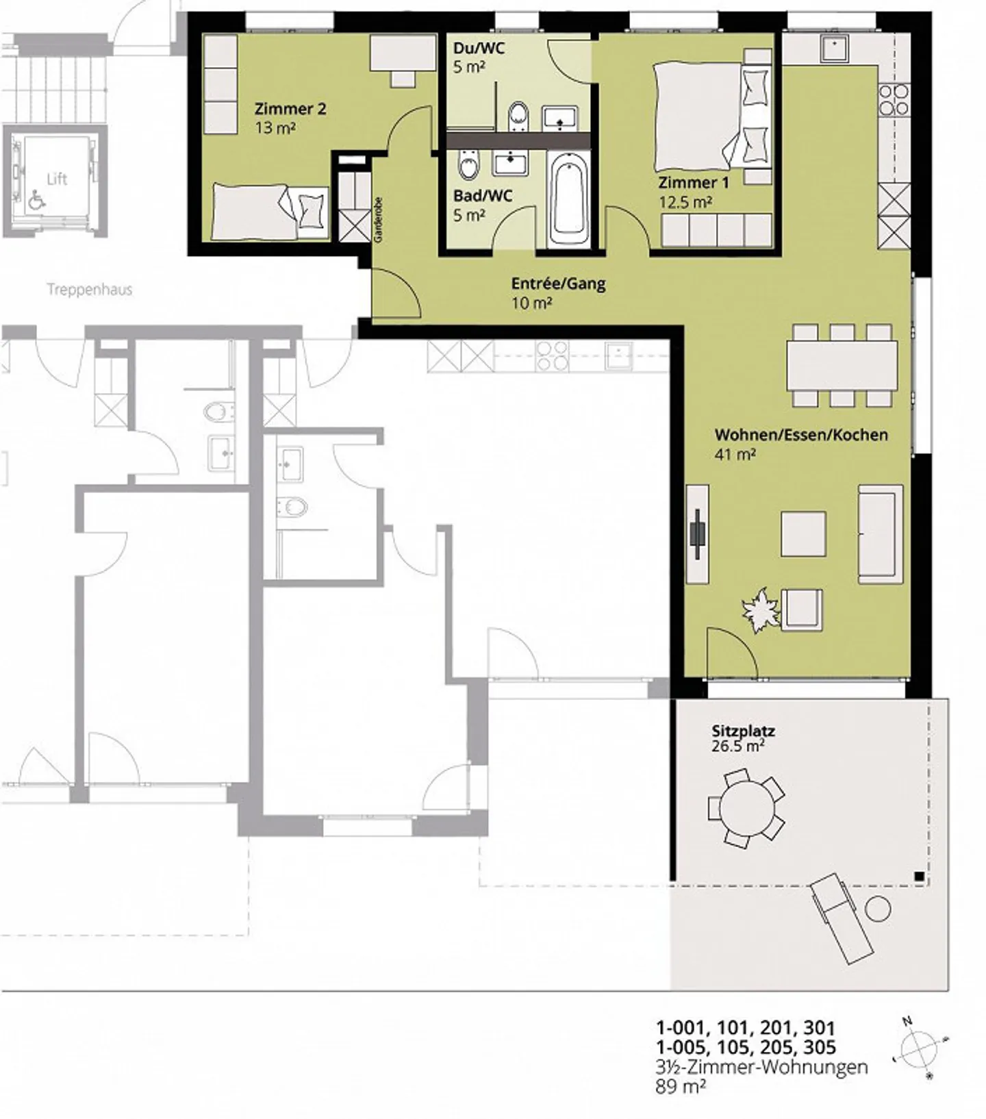
3.5 stanze • 89 m² • Piano terra
CHF 1’750.-
CHF 236 m² / year

Perché amerai questa proprietà

Vista mozzafiato sulle montagne

Parquet in rovere moderno

Lavanderia privata nel seminterrato

Organizza una visita

Prenota una visita con Evelyne oggi!

Evelyne Gieseck
Fortimo AG
Questa descrizione è stata tradotta automaticamente da Tedesco.

Appartamento al piano terra in una posizione tranquilla

Qualità di vita pura egg-sennwald.ch

Nella bella comunità di Rheintal Sennwald, affittiamo questo attraente appartamento di 3½ locali al piano terra:

- Standard di costruzione moderno

- Parquet in rovere in tutti gli spazi abitativi

- Piastrelle nella doccia/WC

- Adiacente a una zona verde con una vista mozzafiato sulle montagne

- Proprio torre di lavaggio nel seminterrato

- Ascensore

Disponibile anche: posto auto in garage sotterraneo a CHF 120.-

Le immagini corrispondono a un appartamento di tipo simil...

Dettagli immobile

Disponibile dal
Su accordo
Stanze
3.5
Anno di costruzione
2016
Superficie abitabile
89
Piano
Terra

Caratteristiche

Garage
Balcone
Parcheggio
Vista libera
Ascensore
Tv via cavo
Accessibile ai disabili

Agenzia

Fortimo AG
Indirizzo:St.Gallen, Rorschacherstrasse 286, 9016
Ref: 6015.1.6015005

Località

Bodenagger 1, 9466 Sennwald

Fonti