Sala hobby in affitto - Lagerweg 8b, 4932 Lotzwil
Perché amerai questa proprietà
Dimensioni delle stanze flessibili
Prezzi di affitto accessibili
Posizione comoda
Organizza una visita
Prenota una visita con L. oggi!
Ampia stanza disponibile in affitto
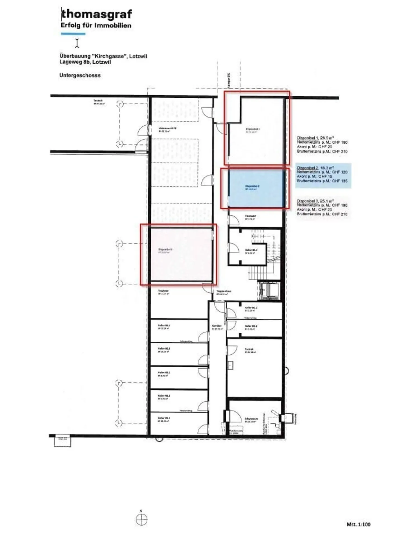
Affittiamo da subito o secondo accordo tre locali disponibili presso Lagerweg 8b a 4932 Lotzwil. Questi si trovano nel seminterrato del palazzo in diverse metrature.
Disponibile 1: 26,5 m² per CHF 210,00 spese incluse
Disponibile 2: 16,3 m² per CHF 135,00 spese incluse
Disponibile 3: 25,1 m² per CHF 210,00 spese incluse
Importante: NON viene affittato come alloggio/appartamento!
Siete interessati? Contattateci oggi stesso per fissare un appuntamento per una visita.
Ripartizione dei costi
- Affitto netto
- CHF 210
- Costi aggiuntivi
- CHF 20
- Totale delle locazioni
- CHF 210
Dettagli immobile
- Disponibile dal
- 23.10.2025



