Casa singola in vendita - Im Chrüzacher, 8174 Stadel b. Niederglatt
Perché amerai questa proprietà
Giardino incantevole
Funzionalità smart home
Ampio garage per 3 auto
Organizza una visita
Prenota una visita oggi!
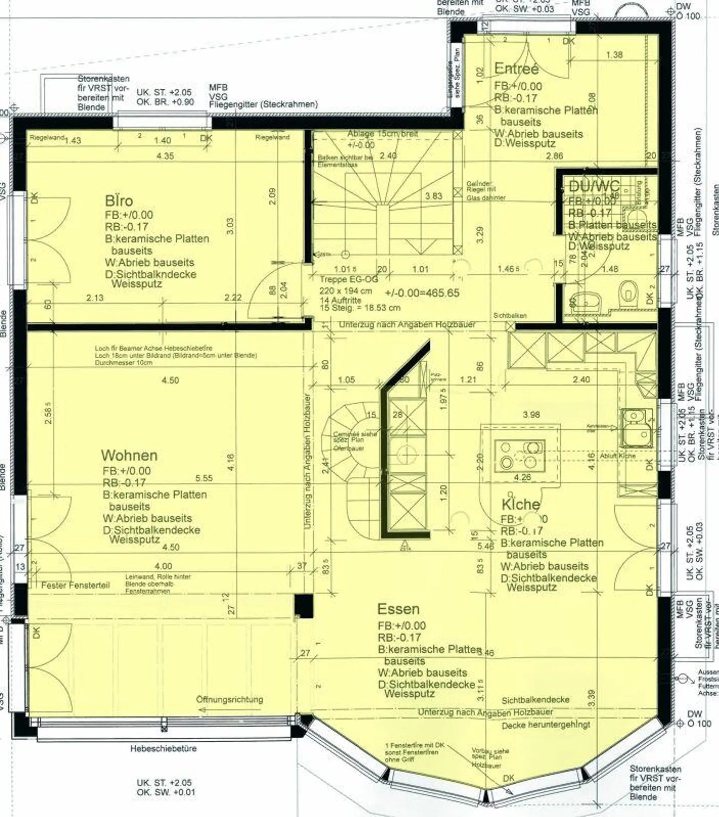
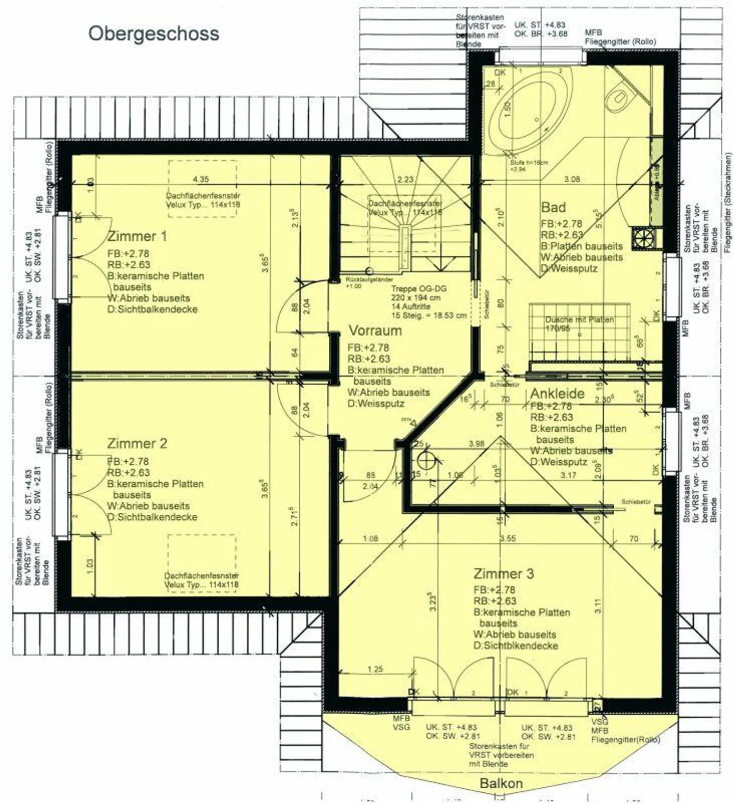
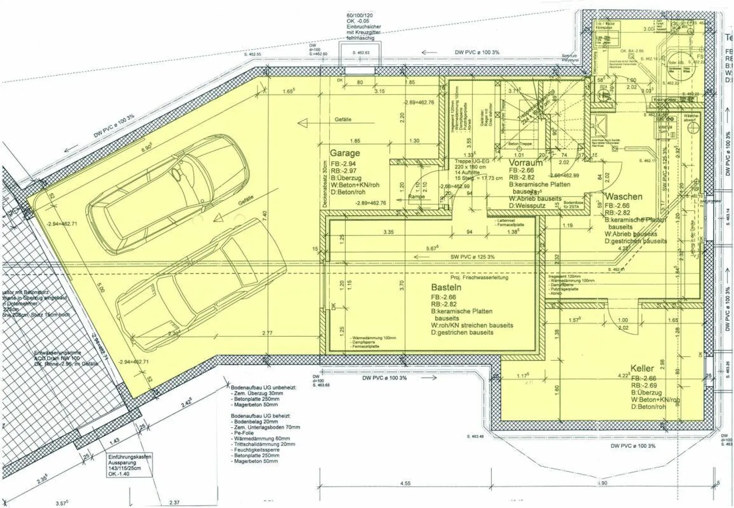
Casa unifamiliare di 5,5 locali molto ben tenuta con bellissimo giardino
Casa unifamiliare di 5,5 locali molto ben tenuta con bellissimo giardino in una posizione tranquilla a Stadel vicino a Niederglatt ZH
Vendiamo, per conto del proprietario, una casa unifamiliare di 5,5 locali molto ben tenuta in Chrüzacher 6 a Stadel vicino a Niederglatt ZH. La proprietà si trova in un quartiere di case unifamiliari tranquillo e adatto alle famiglie con una strada senza uscita e dispone di un bellissimo giardino. L'area ricreativa locale e la foresta sono nelle immediate vicinanze...
Dettagli immobile
- Disponibile dal
- Su accordo
- Stanze
- 5.5
- Bagni
- 2
- Anno di costruzione
- 2004
- Superficie abitabile
- 305 m²
- Superficie terreno
- 670 m²


