Appartamento in vendita - Via Gaggiolo 50b, 6855 Stabio
Perché amerai questa proprietà
Ampio spazio hobby
Garage privata con cancello
Ideale per investimento
Organizza una visita
Prenota una visita oggi!
Appartamento luminoso in vendita, a due passi dalla stazione doganale
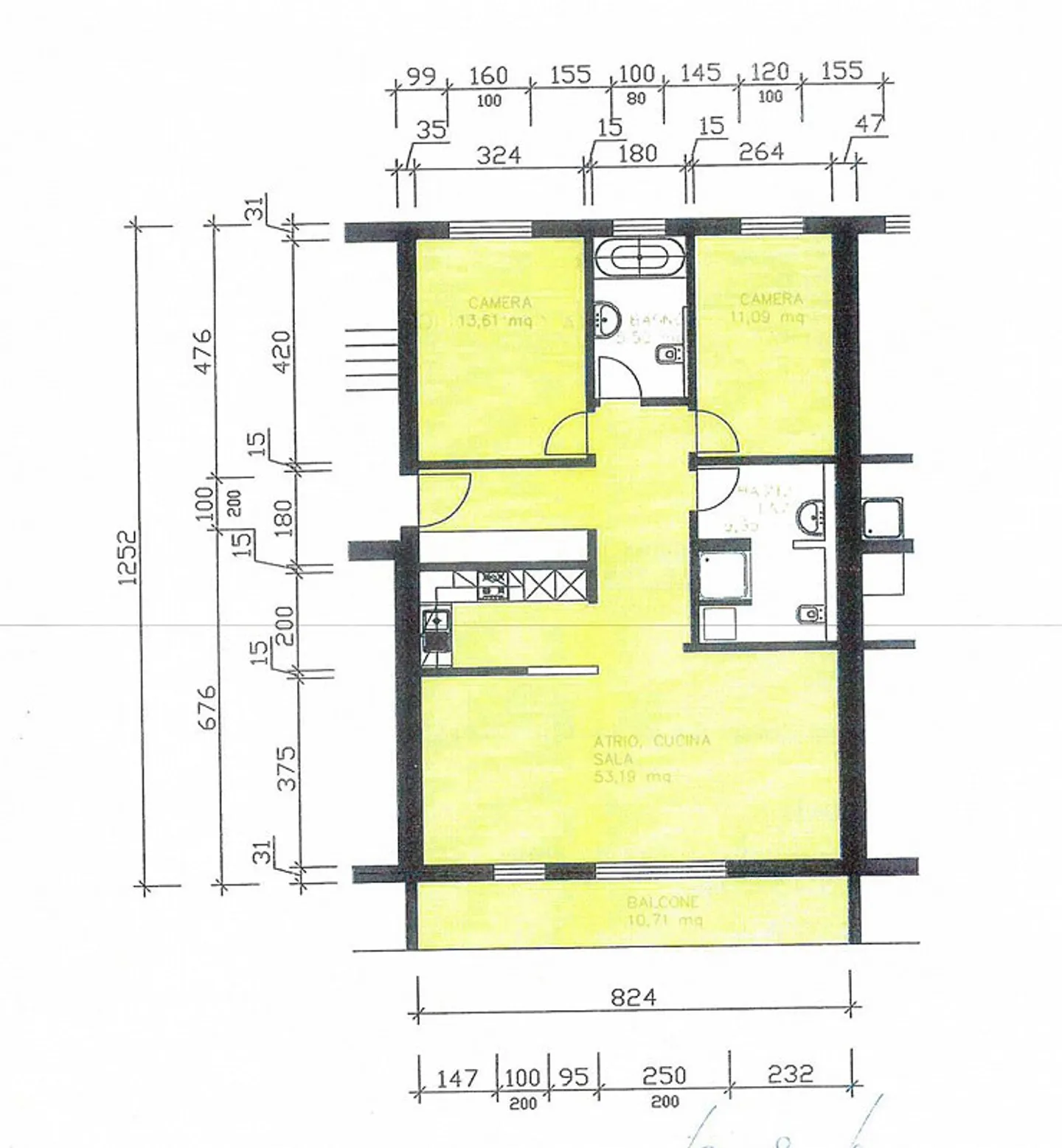
A pochi passi dal confine, in un edificio di nuova costruzione, è in vendita un appartamento confortevole e luminoso di 3,5 locali con balcone.
L'appartamento è composto da: ingresso con armadi a muro, ampio soggiorno con cucina a vista, bagno con doccia e lavanderia, corridoio, camera da letto, bagno con vasca idromassaggio e grande camera singola.
La proprietà dispone di un ampio locale hobby, un posto auto esterno e un garage privato con porta automatica.
La posizione strategica dell'apparta...
Dettagli immobile
- Disponibile dal
- Su accordo
- Stanze
- 3.5
- Anno di costruzione
- 2015
- Superficie abitabile
- 113 m²
- Superficie utilizzabile
- 113 m²
- Piano
- 2°



