Appartamento in vendita - 1206 Genève
Perché amerai questa proprietà
Balcone soleggiato a sud-est
Vicino al Parc Bertrand
Residenza prestigiosa con portineria
Organizza una visita
Prenota una visita oggi!
In esclusiva:
Nel cuore del quartiere di Champel, vicino ai servizi, negozi e mezzi pubblici, questo appartamento di 4 locali beneficia di una posizione eccezionale ricercata da una clientela in cerca di un luogo di vita tranquillo a 2 minuti a piedi dal magnifico parco Bertrand.
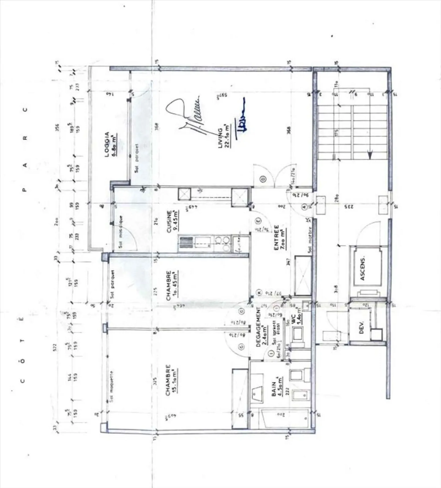
Nel cuore di una residenza di prestigio con servizio di portineria, dispone di una superficie PPE di circa 80m2 con un balcone di oltre 7m2 esposto a sud-est.
È distribuito nel seguente modo:
Per la parte giorno; un ingresso con un g...
Dettagli immobile
- Disponibile dal
- Su accordo
- Stanze
- 4
- Anno di costruzione
- 1968
- Superficie abitabile
- 78 m²
- Superficie utilizzabile
- 81 m²
- Piano
- 1°



