Spazio ufficio in affitto - Alpenstrasse 1, 6004 Luzern
Perché amerai questa proprietà
Layout di uffici flessibili
Vista lago mozzafiato
Caffè e Wi-Fi gratuiti
Organizza una visita
Prenota una visita con Bussmann oggi!
Attraktive einzelne büros im herzen von luzern – top-lage
Attraktive einzelne Büros im Herzen von Luzern – Top-Lage
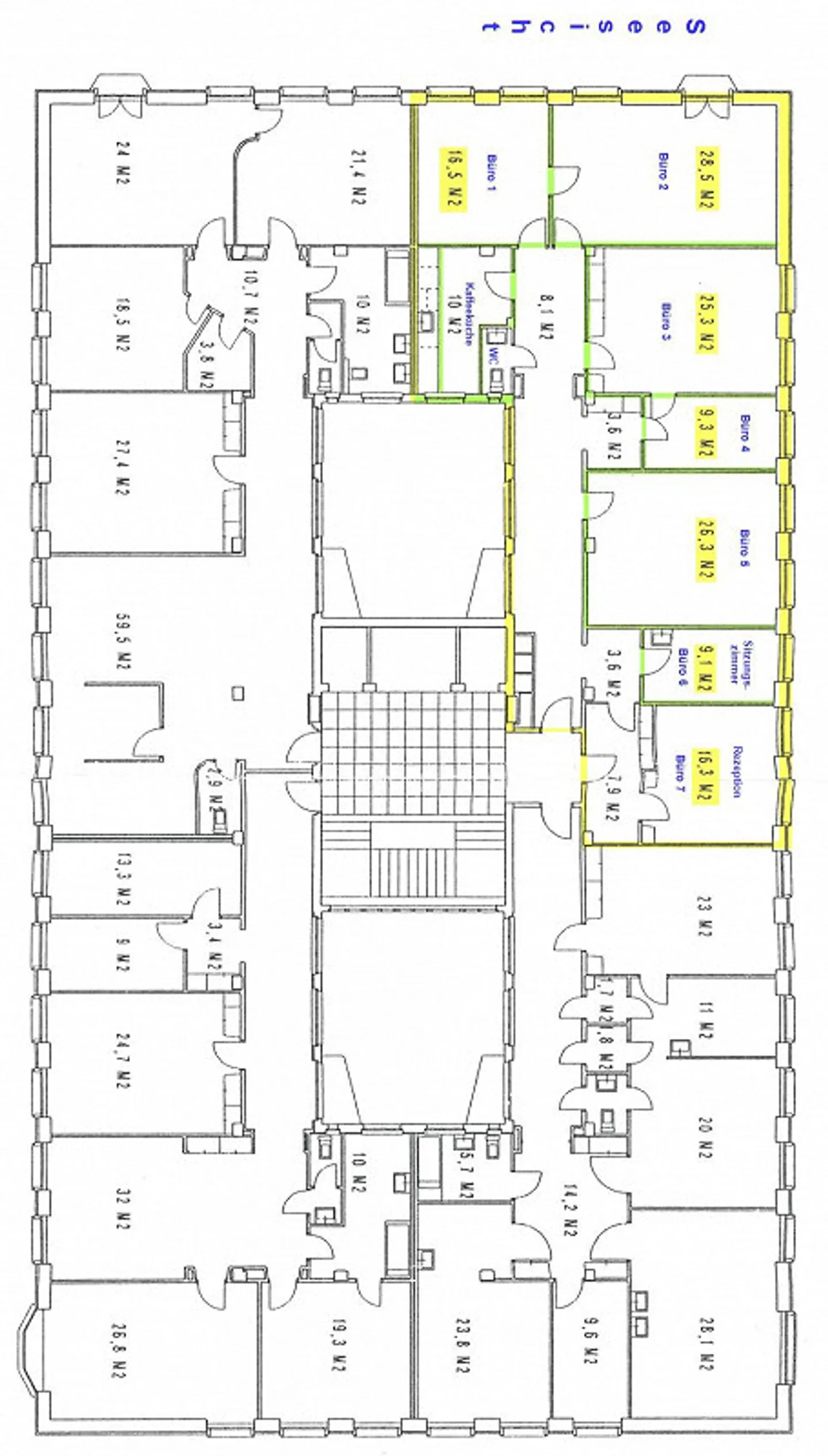
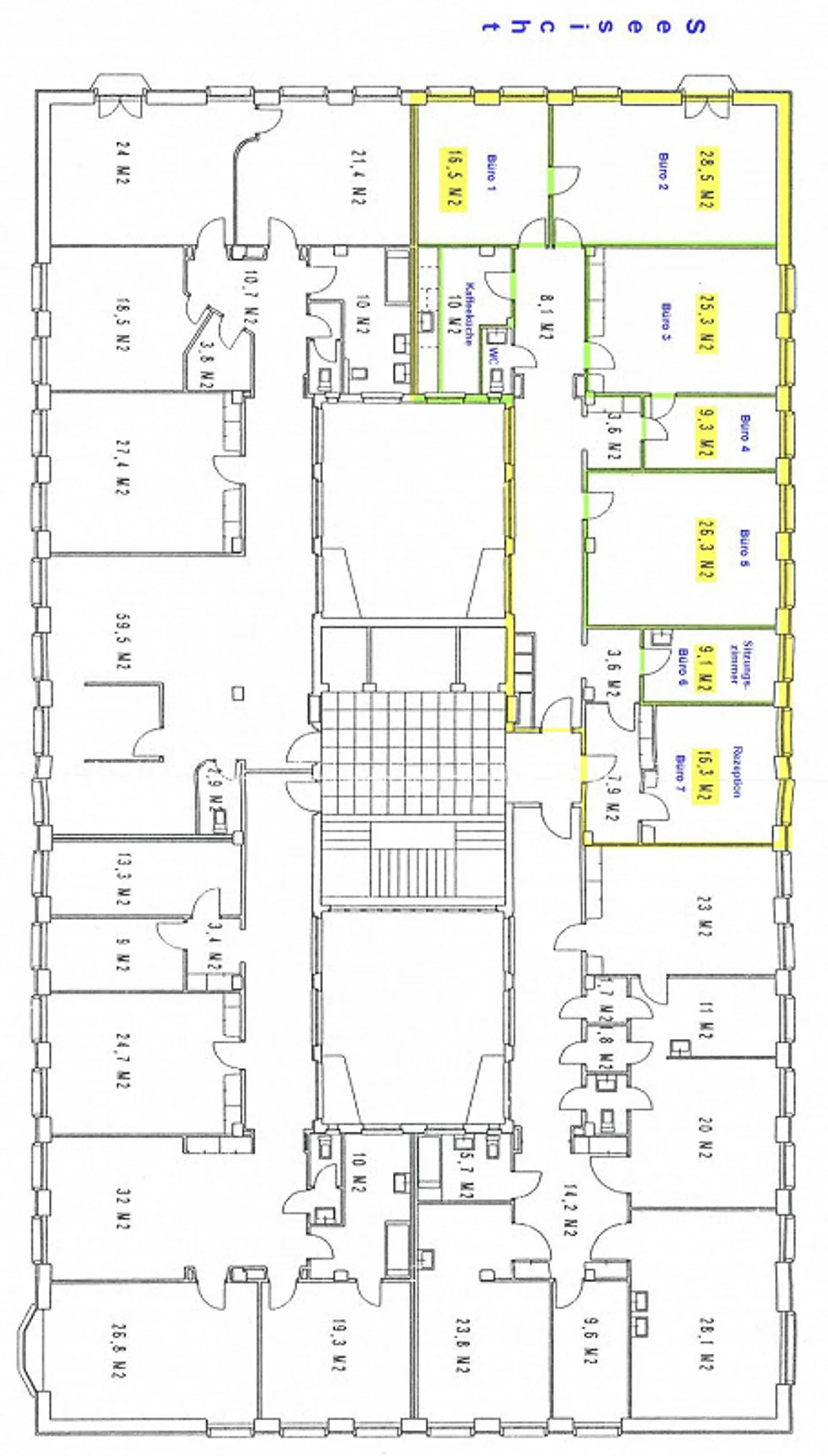
Büro 4 mit 9.3 m², Miete CHF 420.00
Objektbeschreibung
An erstklassiger Lage an der Alpenstrasse 1 vermieten wir in Untermiete Büro 4 (9.3 m²) gemäss angefügtem Grundrissplan im 5. Obergeschoss eines repräsentativen Geschäftshauses, mitten in der Stadt Luzern. Die Fläche umfasst insgesamt 7 möblierte, abschliessbare Räume (zwischen 9.3 m² und 28.5 m²), die sich flexibel als Einzel-, Doppel- oder Dreierbüros nutzen lassen. Büro 1 und 2 mit di...
Dettagli immobile
- Disponibile dal
- Su accordo


