Appartamento in affitto - 8006 Zürich
Perché amerai questa proprietà
Terrazza privata sul tetto
Elegante bagno ensuite
Interni moderni e luminosi
Organizza una visita
Prenota una visita oggi!
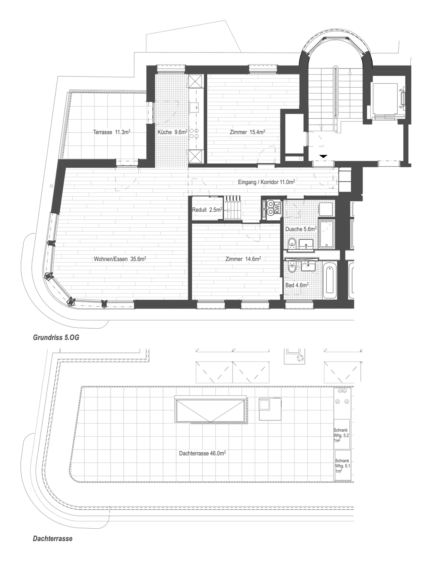
Esclusivo appartamento attico di 3,5 locali con terrazza sul tetto e vista lago
In Schaffhauserplatz 10, troverete un appartamento attico di 3,5 locali recentemente ristrutturato con una terrazza sul tetto privata. L'attico appena creato colpisce per le finiture di alta qualità, molta luce e un caldo parquet in rovere.
Il spazioso soggiorno e sala da pranzo con cucina semi-aperta è completato da una seconda terrazza di 11,3 m² - ideale per il caffè del mattino o le serate estive miti.
Due camere eleganti (una con bagno privato), bagni di alta qualità, un pratico ripostiglio e...
Ripartizione dei costi
- Affitto netto
- CHF 5’185
- Costi aggiuntivi
- CHF 300
- Totale delle locazioni
- CHF 5’185
Dettagli immobile
- Disponibile dal
- Su accordo
- Stanze
- 3.5
- Anno di ristrutturazione
- 2025
- Superficie abitabile
- 99 m²
- Piano
- 5°



