Appartamento in affitto - Baselstrasse 72, 4153 Reinach BL
Perché amerai questa proprietà
Cucina aperta spaziosa
Riscaldamento a pavimento
Accesso privato alla loggia
Organizza una visita
Prenota una visita oggi!
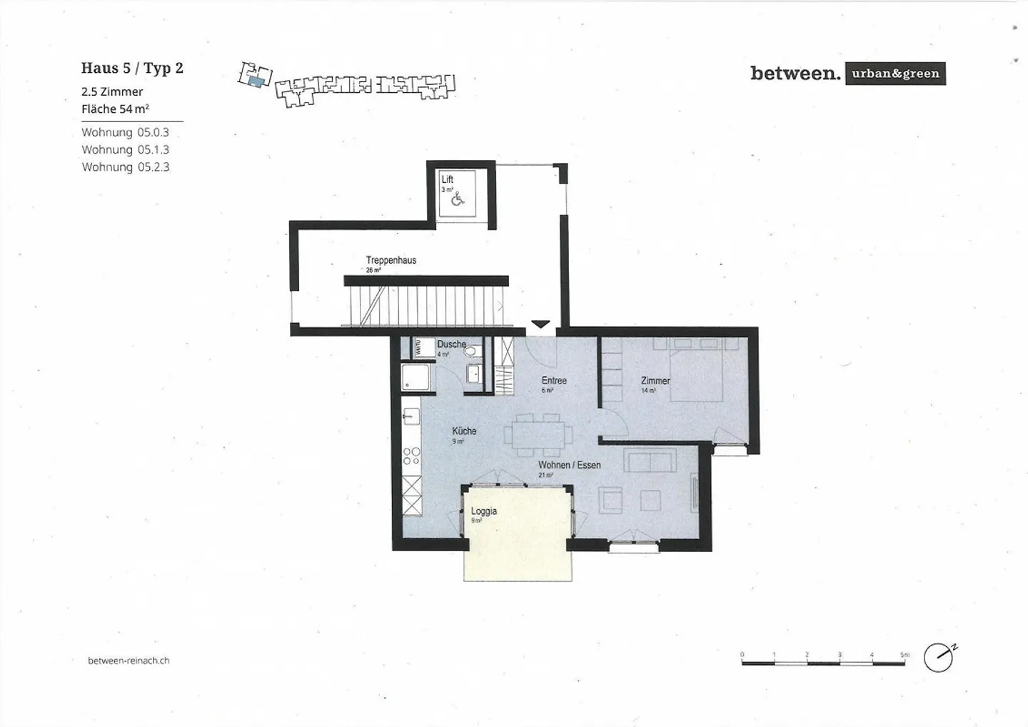
Appartamento 2,5 locali ultra moderno (2° piano) con loggia, ascensore + propria torre di lavaggio
Affittiamo questo appartamento 2,5 locali ultra moderno con loggia a partire dal 1° febbraio 2026, con la seguente disposizione:
- Ingresso con armadio
- Cucina attrezzata aperta con grande zona pranzo e soggiorno con accesso alla loggia (lato giardino)
- Doccia/WC/lavabo con torre di lavaggio
- 1 camera da letto
Tutte le stanze sono dotate di piastrelle o pavimenti in parquet.
Poiché si tratta di una casa Minergie, l'appartamento è dotato di riscaldamento a pavimento.
È possibile affittare un posto au...
Ripartizione dei costi
- Affitto netto
- CHF 1’750
- Costi aggiuntivi
- CHF 210
- Totale delle locazioni
- CHF 1’750
Dettagli immobile
- Disponibile dal
- Su accordo
- Stanze
- 2.5
- Anno di costruzione
- 2024
- Superficie abitabile
- 54 m²
- Piano
- 2°



