Appartamento in affitto - Ullmannstrasse 39a, 9014 St. Gallen
Perché amerai questa proprietà
Posizione tranquilla con servizi
Cucina moderna con granito
Balcone coperto esposto a ovest
Organizza una visita
Prenota una visita oggi!
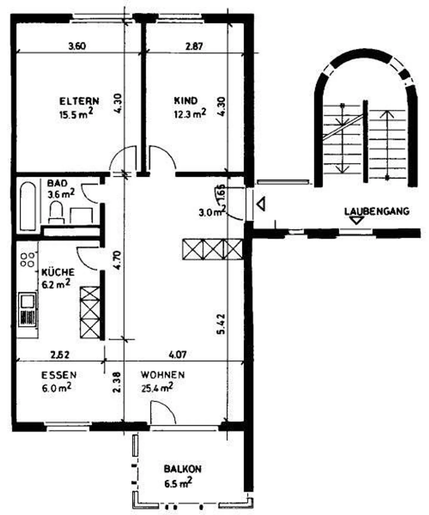
Prima locazione dopo ristrutturazione completa
Dopo una giornata frenetica, il tramonto sul tuo balcone ti porta rapidamente a pensare ad altro. Ma ci sono altre buone ragioni per considerare questo appartamento. Ad esempio, la posizione tranquilla e le opzioni di shopping (supermercato Coop Lerchenfeld) nelle immediate vicinanze.
Per la tua qualità abitativa:
- Appartamento intero con pavimenti in parquet e piastrelle
- Nuova cucina con piano cottura in vetroceramica, lavastoviglie e piano di lavoro in granito
- Nuovo bagno con vasca e WC
- Balc...
Ripartizione dei costi
- Affitto netto
- CHF 1’590
- Costi aggiuntivi
- CHF 230
- Totale delle locazioni
- CHF 1’590
Dettagli immobile
- Disponibile dal
- 01.01.1970
- Stanze
- 3.5
- Anno di costruzione
- 1984
- Superficie abitabile
- 72 m²
- Piano
- 2°



