Appartamento in affitto - Winkelrainweg 1a, 8102 Oberengstringen
Perché amerai questa proprietà
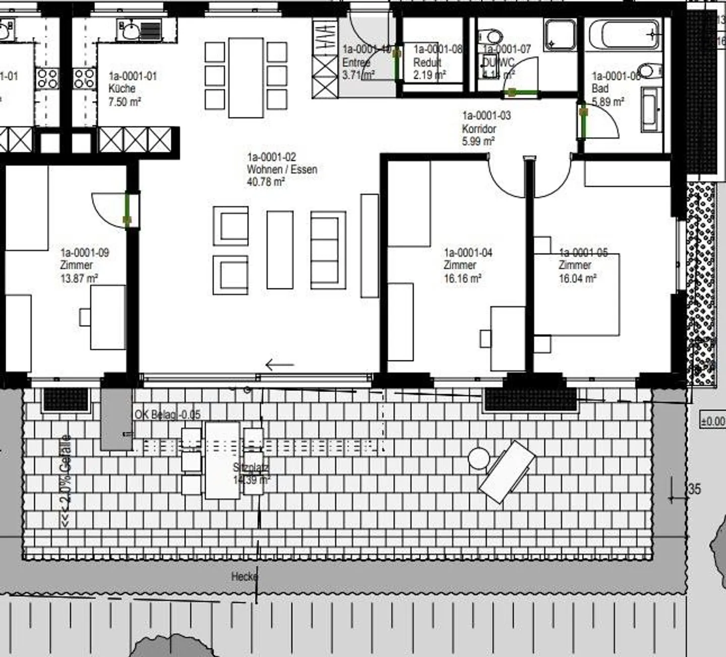
Layout spazioso e unico
Cucina moderna con spazio
Ampio balcone soleggiato per rilassarsi
Organizza una visita
Prenota una visita con Samuel oggi!
Centrale, tranquilla e con un grande balcone - la tua nuova casa!
Affittiamo un appartamento luminoso in una proprietà ben tenuta che si distingue per le seguenti caratteristiche:
- Ampio e originale piano d'uso
- Cucina moderna - con vetroceramica, lavastoviglie e molto spazio di stoccaggio
- Pavimento in parquet - in tutto l'appartamento per un piacevole comfort abitativo
- Bagno con vasca e WC per gli ospiti
- Pratico ripostiglio - ideale per ulteriore spazio di stoccaggio
- grande balcone soleggiato - perfetto per rilassarsi
- Cantina separata - offre spazio aggi...
Ripartizione dei costi
- Affitto netto
- CHF 3’295
- Costi aggiuntivi
- CHF 290
- Totale delle locazioni
- CHF 3’295
Dettagli immobile
- Disponibile dal
- Su accordo
- Stanze
- 4.5
- Anno di costruzione
- 2009
- Anno di ristrutturazione
- 2020
- Superficie abitabile
- 117 m²
- Piano
- Terra



